Listing Agent: Rene Christenson, Century 21 Ditton Realty
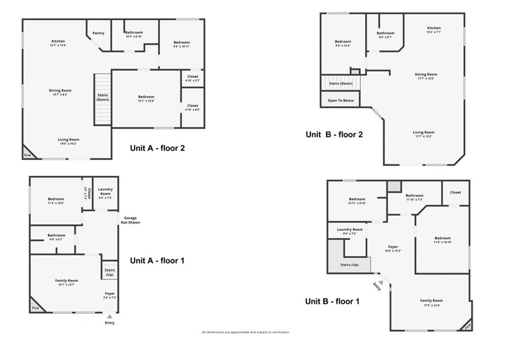
Welcome to one of the most beautiful destination locations! Stunning Yosemite National Park is just minutes from this gorgeous duplex! Set on a level .24+/- acre there is lots of desirable parking with a garage and 8 spaces. Each duplex offers 3 bedrooms, 2 bathrooms (bedrooms and bathrooms on both levels), a lovely living room with fireplace, spacious kitchen, laundry and a family room on the lower levels. A wonderful deck on each duplex is a great place to relax and barbecue while enjoying the your mountain setting! Excellent year 'round vacation rentals near Wawona and Yosemite Valley and so many amazing natural wonders! Winter snow is perfect for nearby Badger Pass for skiing and this duplex has an on demand generator. Make a great investment with these turnkey adjoining homes today!
Property Sub Type
Single Family Residence
Structure Type
Duplex
Year Built
2012
Year Built Source
Assessor
Special Listing Conditions
Standard
Stories Total
2
Levels
Two
Number Of Units Total
2
Entry Level
1
Entry Location
Ground Level
Price Per Square Foot
$634
Days On London
717
Cumulative Days On London
717
County Or Parish
Mariposa
New Construction Y/N
No
Property Attached Y/N
Yes
Cooling Y/N
Yes
Fence Y/N
No
Heating Y/N
Yes
Directions
Highway 41 to Wawona Road to Henness Ridge Drive to Henness Ridge Road to Yosemite Park Way to Choke Cherry Lane. Property on corner of Choke Cherry and Yosemite Park Way.
Architectural Style
Custom Built
Room Type
Separate Family Room, Laundry, Kitchen, Living Room, Main Floor Bedroom, Family Room
Shower in Tub, Exhaust fan(s), Walk-in shower, Granite Counters
Interior Features
Ceiling Fan(s), Living Room Deck Attached, Granite Counters
Flooring
Vinyl, Carpet
Common Walls
1 Common Wall
Fireplace Y/N
Yes
Fireplace Features
Propane, Living Room, Wood Stove Insert
Pool Features
None
Pool Private Y/N
No
Spa Y/N
No
Spa Features
None
Patio Y/N
Yes
Patio And Porch Features
Deck
Electric
Electricity - On Property
Utilities
Propane, Phone Connected, Electricity Connected
Water Source
Public
Sewer
Public Sewer
Parking Y/N
Yes
Parking Total
2.00
Parking Features
Concrete, Garage - Single Door, Driveway
Attached Garage Y/N
Yes
Garage Spaces
2.00
Lot Features
Treed Lot, Corner Lot, Cul-De-Sac, 0-1 Unit/Acre
Lot Size Area
0.2400
Lot Size Units
Acres
Road Frontage Type
County Road
Road Surface Type
Paved
View Y/N
Yes
View
Mountain(s), Trees/Woods, Rocks
Fencing
None
Common Interest
None
Parcel Number
0061000180
Additional Parcels Y/N
No
Zoning
210
Community Features
Rural, BLM/National Forest
Senior Community Y/N
No
Association Y/N
No
High School District
Mariposa County Unified
Elementary School
Mariposa
Middle Or Junior School
Mariposa
High School
Mariposa
Lease Considered Y/N
No
Land Lease Y/N
No
Assessments
Unknown
Tax Lot
113
Tax Census Tract
3.02
71109
A: SELECT * FROM `lpdotcom`.`props-main` WHERE CAST(`props-main`.`ListingPrice` AS DECIMAL) >= 2137500 AND CAST(`props-main`.`ListingPrice` AS DECIMAL) <= 2362500 AND CAST(`props-main`.`Bedrooms` AS DECIMAL) >= '6' AND CAST(`props-main`.`Bathrooms` AS DECIMAL(10,5)) >= '4' AND CAST(`props-main`.`SquareFootage` AS DECIMAL) >= 3300 AND CAST(`props-main`.`SquareFootage` AS DECIMAL) <= 3800 AND ((`props-main`.`PropertyType` = 'Residential' AND (
`props-main`.`PropertySubtype1` = '1 House on Lot' OR `props-main`.`PropertySubtype2` = '1 House on Lot' OR `props-main`.`PropertySubtype3` = '1 House on Lot' OR
`props-main`.`PropertySubtype1` = 'Cabin' OR `props-main`.`PropertySubtype2` = 'Cabin' OR `props-main`.`PropertySubtype3` = 'Cabin' OR
`props-main`.`PropertySubtype1` = 'House on Lot' OR `props-main`.`PropertySubtype2` = 'House on Lot' OR `props-main`.`PropertySubtype3` = 'House on Lot' OR
`props-main`.`PropertySubtype1` = 'Own Your Own' OR `props-main`.`PropertySubtype2` = 'Own Your Own' OR `props-main`.`PropertySubtype3` = 'Own Your Own' OR
`props-main`.`PropertySubtype1` = 'Rural Residence' OR `props-main`.`PropertySubtype2` = 'Rural Residence' OR `props-main`.`PropertySubtype3` = 'Rural Residence' OR
`props-main`.`PropertySubtype1` = 'Rural/Residence' OR `props-main`.`PropertySubtype2` = 'Rural/Residence' OR `props-main`.`PropertySubtype3` = 'Rural/Residence' OR
`props-main`.`PropertySubtype1` LIKE '%fam%' OR `props-main`.`PropertySubtype2` LIKE '%fam%' OR `props-main`.`PropertySubtype3` LIKE '%fam%'))) AND ((`props-main`.`id` = 1710276 OR `props-main`.`id` = 1710273 OR `props-main`.`id` = 1666165 OR `props-main`.`id` = 1687603 OR `props-main`.`id` = 1594621 OR `props-main`.`id` = 1594623 OR `props-main`.`id` = 1724890 OR `props-main`.`id` = 1667481 OR `props-main`.`id` = 1687641 OR `props-main`.`id` = 1724887 OR `props-main`.`id` = 1705279 OR `props-main`.`id` = 1628263 OR `props-main`.`id` = 1700179 OR `props-main`.`id` = 1628266 OR `props-main`.`id` = 1700175 OR `props-main`.`id` = 1705285 OR `props-main`.`id` = 1715690 OR `props-main`.`id` = 1705280 OR `props-main`.`id` = 1705286 OR `props-main`.`id` = 1715707 OR `props-main`.`id` = 1668745 OR `props-main`.`id` = 1687565 OR `props-main`.`id` = 1665850 OR `props-main`.`id` = 1687566 OR `props-main`.`id` = 1687625 OR `props-main`.`id` = 1692330 OR `props-main`.`id` = 1692335 OR `props-main`.`id` = 1716945 OR `props-main`.`id` = 1716957 OR `props-main`.`id` = 1716964 OR `props-main`.`id` = 1716979)) AND CONCAT(`MLSFeed`,`MLNumber`) != 'crmlsFR24108921' AND `props-main`.`PictureCount` > 0 AND (`props-main`.`ExpiredDate` >= '2026-05-16' OR `props-main`.`ExpiredDate` IS NULL OR TRIM(`props-main`.`ExpiredDate`) = '') AND `props-main`.`Status` != 'Unapproved' AND (`props-main`.`DupeOf` IS NULL OR TRIM(`props-main`.`DupeOf`) = '') AND `props-main`.`Delayed` = 0 GROUP BY `props-main`.`id` ORDER BY RAND();
0
The data relating to real estate for sale on this web site comes in part from the Internet Data eXchange (IDX) of the Multiple Listing Service. Real estate listings are marked with the IDX logo and detailed information about them includes the name of the listing broker and the name of the listing agent. The information being provided is for consumers' personal, non-commercial use and may not be used for any purpose other than to identify prospective properties consumer may be interested in purchasing. Information herein deemed reliable but not guaranteed, representations are approximate, individual verification recommended.