FBpixel

Get More Info

Print A Flyer

Get A Home Loan

Share

4904 Sierra Pines Dr

Mariposa, CA 95338

Copy Link Get Directions

$935,000

3 bd
  |  
4 ba
  |  
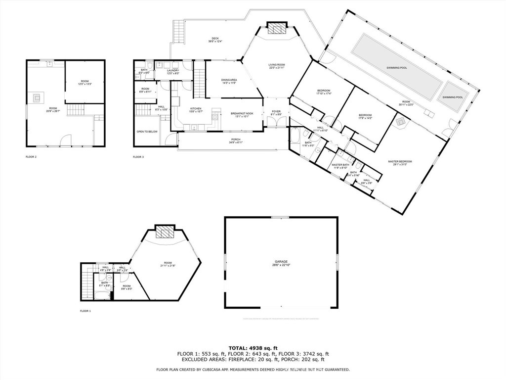
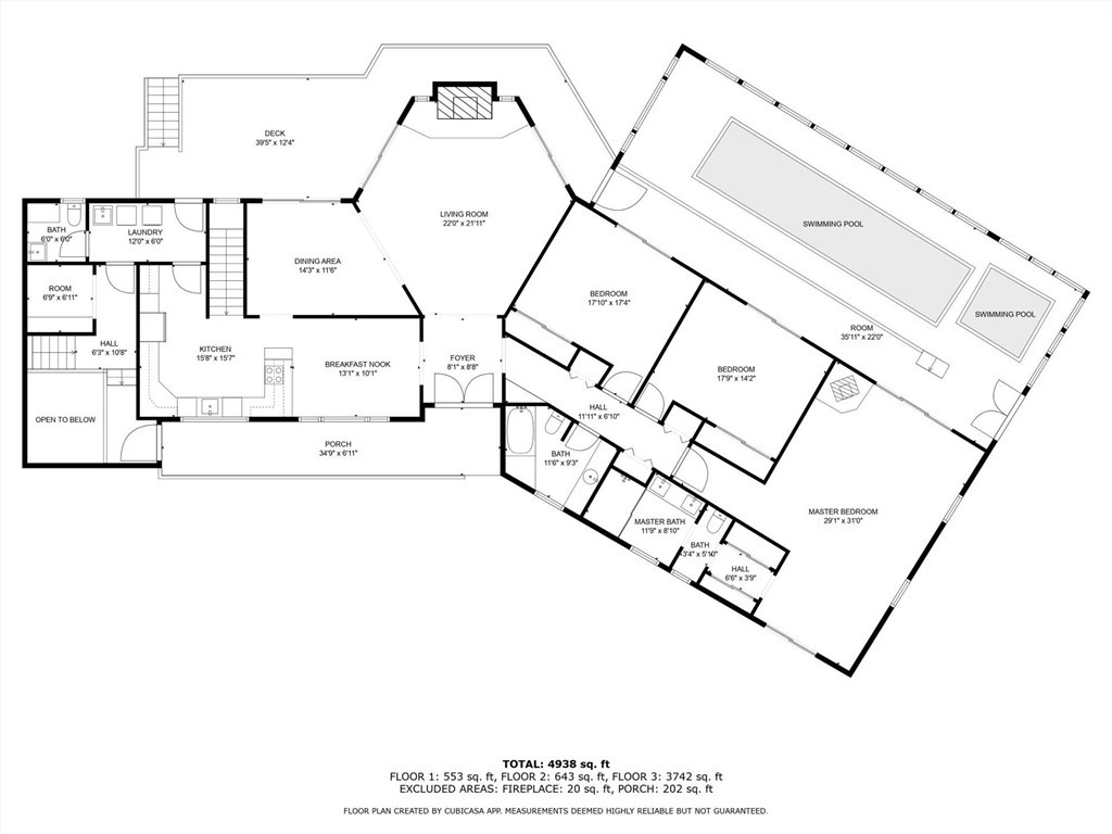
3,088 sq ft
  |  
10.46 acres

4904 Sierra Pines Dr

Mariposa, CA 95338

Get Directions
Listed On: 11/06/2025
Status: Active
Listing Number: FR25255216 (CRMLS)

Schedule a Tour

Contact Info


Advertising Agent:

Hannah Smith
Hannah Smith 559.676.9860 Visit Website Email Agent
Property Description
Listing Agent: Hannah Smith, London Properties, Ltd

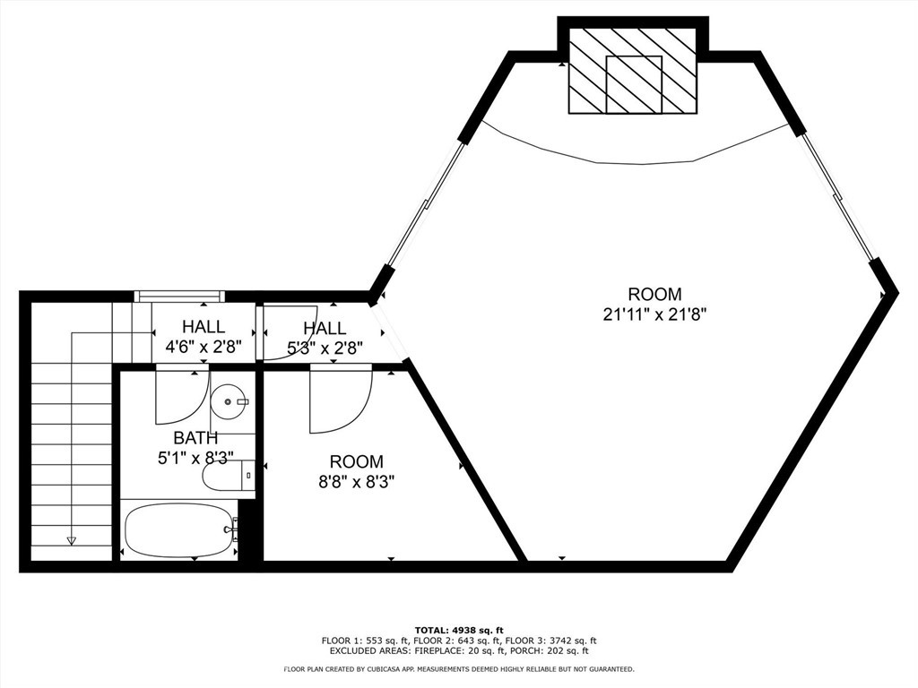
This outstanding custom built home has so many unique qualities and beauty, it is a must-see mountain gem. Bosting over 3,000 sf of living space on over 10 acres that runs into the Lush Meadows pond, Dawn Lake (but is outside of the association). Circular driveway, double door entry & gorgeous mountain views from all around. Large 4 stall horse barn that could alternately be the perfect game room if you're planning on making this a short-term rental (home is ADA compliant & turn-key for a primary residence, vacation home or STR), fenced garden area, horse arena & fenced dog run. This home radiates quality & craftmanship with a large primary suite featuring vaulted beamed ceilings with tongue & groove, wood stove, his & her sinks & closets with access to the indoor pool & spa from every bedroom. Jetted guest tub, large walk-in pantry, formal dining, grand Livingroom with a statement rock fireplace & decks for summer nights & entertaining. There is a studio with sink & fridge hookup + more closet space, this could be the perfect office or another bedroom with a wood stove and its own entrance. Downstairs from the kitchen is the library/bedroom/family room/office with a bathroom and its own cozy rock fireplace. This is your mountain retreat, close to Yosemite, the beautiful town of Mariposa or a short drive to Oakhurst for your conveniences. Hiking, biking, paddleboarding, kayaking, fishing... it's right outside your door.
Property Sub Type
Single Family Residence
Structure Type
House
Year Built
1984
Year Built Source
Public Records
Special Listing Conditions
Standard
Stories Total
2
Levels
Two
Number Of Units Total
1
Entry Level
1
Entry Location
Front
Price Per Square Foot
$303
Days On London
172
Cumulative Days On London
360
County Or Parish
Mariposa
New Construction Y/N
No
Property Attached Y/N
No
Cooling Y/N
Yes
Heating Y/N
Yes
Directions
From Hwy 49, Right turn onto Triangle Rd, stay left onto triangle Rd, left onto Meadow Ln, Left onto Clouds Rest, Left onto Sierra Pines Dr, Sign is at the property.
Architectural Style
See Remarks, Custom Built
Room Type
Walk-In Closet, Separate Family Room, Walk-In Pantry, Laundry, Bonus Room, Library, See Remarks, Kitchen, Primary Suite
Heating
Central, Wood Stove
Cooling
Central Air
Laundry Y/N
Yes
Laundry Features
Inside, Individual Room
Roof
Composition
Construction Materials
Wood Siding
Door Features
Double Door Entry
Window Features
Double Pane Windows, Skylight(s)
Foundation Details
Combination
Property Condition
Turnkey
Other Structures
Barn(s)
Main Level Bedrooms
0
Bathrooms Full
3
Bathrooms Full And Three Quarter
3
Bathrooms Half
1
Main Level Bathrooms
2
Eating Area
Breakfast Counter / Bar, Area
Appliances Y/N
Yes
Appliances
Disposal, Microwave, Electric Range, Dishwasher
Room Bathroom Features
Shower in Tub, Jetted Tub, Double sinks in bath(s), Bathtub, Double Sinks in Primary Bath
Interior Features
Beamed Ceilings, High Ceilings, Ceiling Fan(s), Pantry, Open Floorplan, Cathedral Ceiling(s)
Flooring
Tile, Vinyl, Wood
Common Walls
No Common Walls
Fireplace Y/N
Yes
Fireplace Features
Wood Burning, Living Room, Wood Stove Insert
Pool Features
Indoor, In Ground, Private
Pool Private Y/N
Yes
Spa Y/N
Yes
Spa Features
In Ground, Private
Patio Y/N
Yes
Patio And Porch Features
Covered, Concrete, Stone
Utilities
Propane, Electricity Available, Water Connected
Water Source
Well
Sewer
Conventional Septic
Parking Y/N
Yes
Parking Total
2.00
Parking Features
Garage, Driveway, RV Potential
Attached Garage Y/N
No
Garage Spaces
2.00
Lot Features
Treed Lot, Garden, Horse Property, Gentle Sloping, Secluded, 6-10 Units/Acre
Lot Size Area
10.4600
Lot Size Units
Acres
Road Frontage Type
County Road
View Y/N
Yes
View
Mountain(s), Trees/Woods, See Remarks
Waterfront Features
Pond
Common Interest
None
Parcel Number
0151200740
Additional Parcels Y/N
No
Zoning
220
Community Features
Hiking, Mountainous, Foothills, Lake
Senior Community Y/N
No
Association Y/N
No
High School District
Mariposa County Unified
Lease Considered Y/N
No
Land Lease Y/N
No
Assessments
Unknown
Tax Lot
A
Tax Census Tract
3.02

The data relating to real estate for sale on this web site comes in part from the Internet Data eXchange (IDX) of the Multiple Listing Service. Real estate listings are marked with the IDX logo and detailed information about them includes the name of the listing broker and the name of the listing agent. The information being provided is for consumers' personal, non-commercial use and may not be used for any purpose other than to identify prospective properties consumer may be interested in purchasing. Information herein deemed reliable but not guaranteed, representations are approximate, individual verification recommended.

Copyright © 2026  London Properties, Ltd. All rights reserved.