FBpixel

Get More Info

Print A Flyer

Get A Home Loan

Share

39468 Summit Dr

Oakhurst, CA 93644

Copy Link Get Directions

$450,000

4 bd
  |  
3 ba
  |  
1,488 sq ft
  |  
1.12 acres

39468 Summit Dr

Oakhurst, CA 93644

Get Directions
Listed On: 03/12/2026
Status: Active
Listing Number: FR26054674 (CRMLS)

Schedule a Tour

Contact Info


Advertising Agent:

London Properties, Ltd.
London Properties, Ltd. 559.683.3400 Email Agent
Property Description
Listing Agent: Don Mandy, Century 21 Ditton Realty

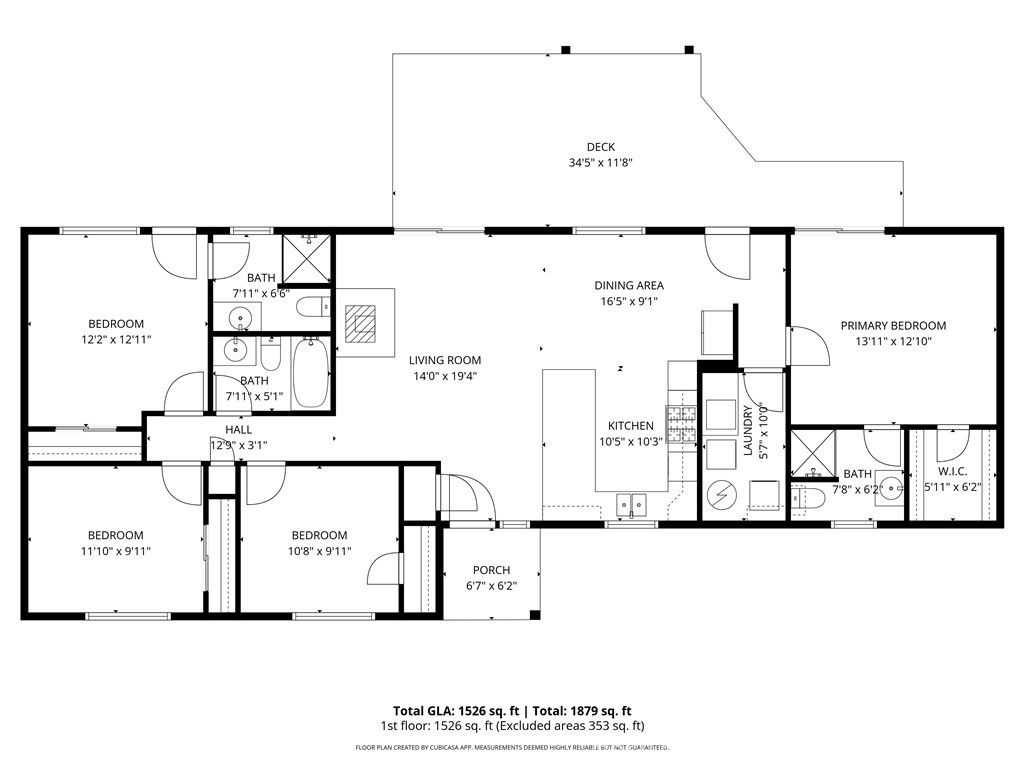
Mountain Luxury Meets Modern Comfort! This stunning, 4-bedroom, 3-bath custom home was completely remodeled from the ground up in 2022. Designed with an open-concept lifestyle in mind, the 1,488 sq. ft. single-level floor plan features two primary suites one at each end of the home offering ideal privacy for extended family, guests, or a high-potential vacation rental. The heart of this family friendly home is a cozy great room where a custom kitchen, featuring luxurious hickory cabinets and granite countertops, flows seamlessly into the dining and living areas. Enjoy the warmth of the wood-burning stove or the efficiency of a brand-new HVAC system and whole-house fan. LED ceiling fans are in all rooms for additional comfort. Outdoor Living & Highlights: Pine, cedar and manzaita trees. Dual Views: The East suite opens to a vibrant rose garden with views of Goat Mountain, Shut Eye and the Sierra Mountains, while the West suite leads to a new redwood deck perfect for sunset watching. Entertainer's Dream: Four access doors lead to the expansive backyard and deck, complemented by a granite breakfast bar that seats five. Bonus Structures: Includes a 12'x22' powered workshop, a new 20' shipping container, and a 16' wood shed. The Lot: Over 1.1 acres on a quiet cul-de-sac with a circular driveway and deer-proof fencing to protect your lush landscaping. Located just 5 minutes from Bass Lake, 6 minutes from town, and 20 minutes from Yosemite's South Gate. At an elevation of 3,750', you'll experience the beauty of all four seasons, including snow! Most furnishings are included.
Property Sub Type
Single Family Residence
Structure Type
House
Year Built
1981
Year Built Source
Public Records
Special Listing Conditions
Standard
Stories Total
1
Levels
One
Number Of Units Total
1
Entry Level
1
Price Per Square Foot
$302
Days On London
62
Cumulative Days On London
177
County Or Parish
Madera
New Construction Y/N
No
Property Attached Y/N
No
Cooling Y/N
Yes
Fence Y/N
Yes
Heating Y/N
Yes
Directions
From Hwy 41 go south on Road 426 5.5 miles to summit road on left
Disclosures
Principal Is RE Licensed, CC And R's, LA/Owner Related, Unincorporated
Architectural Style
Custom Built, Ranch
Room Type
Primary Bedroom, Primary Bathroom, Primary Suite, Laundry, Main Floor Primary Bedroom, Main Floor Bedroom, Two Primaries, Living Room, Workshop, All Bedrooms Down, Kitchen, Utility Room, Walk-In Closet
Heating
Propane, Forced Air, Heat Pump, Wall Furnace, High Efficiency, Central, Wood Stove
Cooling
Electric, Whole House Fan, Central Air, Heat Pump, High Efficiency, SEER Rated 16+
Laundry Y/N
Yes
Laundry Features
Inside, Individual Room, Electric Dryer Hookup, Washer Hookup, Washer Included, Dryer Included
Roof
Composition, Shingle
Security Features
Carbon Monoxide Detector(s), Fire and Smoke Detection System, Smoke Detector(s)
Construction Materials
Masonite, Ducts Professionally Air-Sealed, Shingle Siding, Lap Siding, Blown-In Insulation, Drywall Walls
Door Features
Sliding Doors, Insulated Doors, Panel Doors
Window Features
Double Pane Windows, Insulated Windows, Drapes, Custom Covering, Skylight(s), ENERGY STAR Qualified Windows, Blinds, Screens
Foundation Details
Slab
Property Condition
Turnkey, Updated/Remodeled
Other Structures
Workshop, Storage, Shed(s), Outbuilding
Main Level Bedrooms
4
Bathrooms Full
1
Bathrooms Full And Three Quarter
3
Bathrooms Three Quarter
2
Main Level Bathrooms
3
Room Kitchen Features
Kitchen Open to Family Room, Pots & Pan Drawers, Remodeled Kitchen, Self-closing cabinet doors, Kitchen Island, Self-closing drawers, Granite Counters
Eating Area
Breakfast Counter / Bar, Dining Room
Appliances Y/N
Yes
Appliances
Water Heater, Disposal, Microwave, Refrigerator, Propane Range, Self Cleaning Oven, Propane Oven, Vented Exhaust Fan, Free-Standing Range, Range Hood, Water Line to Refrigerator, Dishwasher
Room Bathroom Features
Tile Counters, Upgraded, Shower in Tub, Exhaust fan(s), Main Floor Full Bath, Low Flow Shower, Bathtub, Low Flow Toilet(s), Remodeled, Shower, Granite Counters
Interior Features
Partially Furnished, Built-in Features, Attic Fan, Track Lighting, Ceiling Fan(s), Pantry, Living Room Deck Attached, Recessed Lighting, Open Floorplan, Storage, In-Law Floorplan, Granite Counters
Accessibility Features
No Interior Steps
Flooring
Tile, Carpet, Laminate
Common Walls
No Common Walls
Fireplace Y/N
Yes
Fireplace Features
Free Standing, Wood Burning, Living Room
Exterior Features
Rain Gutters, Lighting
Pool Features
None
Pool Private Y/N
No
Spa Y/N
No
Spa Features
None
Patio Y/N
Yes
Patio And Porch Features
Front Porch, Wood, Deck
Electric
220 Volts,Electricity - On Property,220 Volts in Laundry
Utilities
Propane, Phone Available, Cable Connected, Electricity Connected, Water Connected
Sewer
Conventional Septic
Green Energy Efficient
Insulation, Roof, Lighting, Doors, HVAC, Thermostat, Windows
Parking Y/N
Yes
Parking Total
6.00
Parking Features
Driveway Down Slope From Street, Asphalt, Driveway Level, Private, On Site, RV Potential, Paved, RV Access/Parking, Driveway, Unpaved, Driveway - Combination, Circular Driveway
Uncovered Spaces
6.00
Lot Features
Sprinklers Drip System, Rectangular Lot, Ranch, Sprinklers Timer, Yard, Corners Marked, Landscaped, Gentle Sloping, Level with Street, Front Yard, Back Yard, Lot Over 40000 Sqft, Cul-De-Sac, Level, Paved, Garden
Lot Size Area
48787.0000
Lot Size Units
Square Feet
Elevation
3867
Road Frontage Type
Private Road
Road Surface Type
Privately Maintained, Paved
View Y/N
Yes
View
Mountain(s), Trees/Woods, Hills
Sprinklers Y/N
Yes
Fencing
Wire, Cross Fenced, New Condition, Wood, Good Condition, Invisible, Excellent Condition
Common Interest
None
Parcel Number
059230020
Additional Parcels Y/N
No
Neighborhood
Bass Lake Heights
Community Features
Gutters, Watersports, Horse Trails, Golf, Rural, Biking, Hiking, Fishing, Mountainous, BLM/National Forest, Foothills, Lake, Suburban, Park, Hunting
Senior Community Y/N
No
Walk Score
0
Association Y/N
No
High School District
Yosemite Unified
Inclusions
most of the furniture, washer & dryer, fridge dining room set, bedroom furniture, TV's,
Exclusions
personal property TBD
Lease Considered Y/N
No
Land Lease Y/N
No
Assessments
Unknown

The data relating to real estate for sale on this web site comes in part from the Internet Data eXchange (IDX) of the Multiple Listing Service. Real estate listings are marked with the IDX logo and detailed information about them includes the name of the listing broker and the name of the listing agent. The information being provided is for consumers' personal, non-commercial use and may not be used for any purpose other than to identify prospective properties consumer may be interested in purchasing. Information herein deemed reliable but not guaranteed, representations are approximate, individual verification recommended.

Copyright © 2026  London Properties, Ltd. All rights reserved.