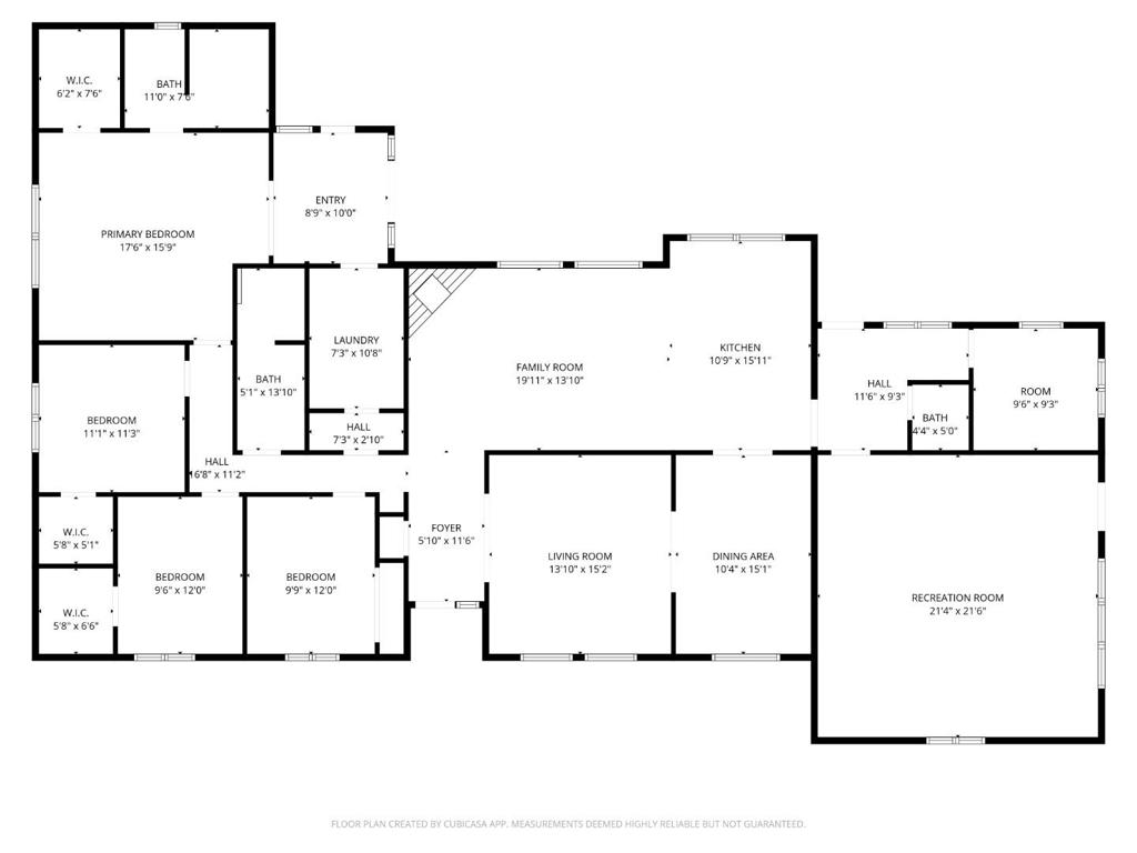
Stunning remodeled (2019 and 2025) 4-bedroom, 2.5-bath home in Yosemite Lake Parks a perfect blend of modern upgrades and outdoor lifestyle. This well-appointed residence features an upgraded kitchen and bathrooms with granite counters, a huge walk-in pantry, and a convenient mud room. Entertain or relax outdoors with a covered patio and private inground pool, plus leased solar for energy savings. Practical conveniences include a circular driveway, ample parking, and dedicated RV parking. Enjoy city views and easy access to outdoor recreation minutes from Yosemite's South Entrance and a short drive to Bass Lake. Highlights: 4 beds, 2.5 baths Upgraded kitchen & baths with granite counters Huge walk-in pantry; mud room Private inground pool; covered patio Leased solar panels Circular driveway, ample parking, RV parking City views; close to Yosemite South Entrance and Bass Lake Down Payment Assistance/100% financing from institutional lender may be available to first time home buyers subject to qualifications.
Property Sub Type
Single Family Residence
Year Built
1979
Year Built Source
Assessor
Special Listing Conditions
Standard
Stories Total
1
Price Per Square Foot
$205
Days On London
0
County Or Parish
Madera
New Construction Y/N
No
Property Attached Y/N
No
Cooling Y/N
Yes
Heating Y/N
Yes
Directions
Hwy 41 to Yosemite Lakes Pkwy. Left on Corral Dr, left on John Muir Dr, left on Lilley Mountain , left on Meadow Cross Street: Lilley Mountain
Architectural Style
Ranch
Room Type
Walk-In Closet
Heating
Propane, Forced Air
Cooling
Central Air, Evaporative Cooling
Laundry Y/N
Yes
Laundry Features
Washer Included
Roof
Tile
Construction Materials
Concrete
Bathrooms Full
2
Bathrooms Full And Three Quarter
2
Bathrooms Half
1
Room Kitchen Features
Kitchen Island, Granite Counters
Eating Area
Breakfast Counter / Bar
Appliances Y/N
Yes
Appliances
Disposal, Refrigerator, Vented Exhaust Fan, Range Hood, Dishwasher
Room Bathroom Features
Double sinks in bath(s), Granite Counters
Flooring
Carpet, Wood
Common Walls
No Common Walls
Fireplace Y/N
Yes
Fireplace Features
Family Room
Pool Features
In Ground, Gunite
Spa Y/N
Yes
Spa Features
In Ground, Gunite
Parking Y/N
Yes
Parking Total
2.00
Parking Features
Guest, Uncovered
Attached Garage Y/N
No
Garage Spaces
2.00
Lot Size Area
49658.0000
Lot Size Units
Square Feet
View Y/N
No
Parcel Number
093380011
Zoning
RMS
Association Amenities
Management, Golf Course, Pool
Association Y/N
Yes
Association Name
YLOA
Association Fee
178.00
Association Fee Frequency
Monthly
High School District
Yosemite Unified
71109
A: SELECT * FROM `lpdotcom`.`props-main` WHERE CAST(`props-main`.`ListingPrice` AS DECIMAL) >= 565250 AND CAST(`props-main`.`ListingPrice` AS DECIMAL) <= 624750 AND CAST(`props-main`.`Bedrooms` AS DECIMAL) >= '4' AND CAST(`props-main`.`Bathrooms` AS DECIMAL(10,5)) >= '3' AND CAST(`props-main`.`SquareFootage` AS DECIMAL) >= 2649 AND CAST(`props-main`.`SquareFootage` AS DECIMAL) <= 3149 AND ((`props-main`.`PropertyType` = 'Residential' AND (
`props-main`.`PropertySubtype1` = '1 House on Lot' OR `props-main`.`PropertySubtype2` = '1 House on Lot' OR `props-main`.`PropertySubtype3` = '1 House on Lot' OR
`props-main`.`PropertySubtype1` = 'Cabin' OR `props-main`.`PropertySubtype2` = 'Cabin' OR `props-main`.`PropertySubtype3` = 'Cabin' OR
`props-main`.`PropertySubtype1` = 'House on Lot' OR `props-main`.`PropertySubtype2` = 'House on Lot' OR `props-main`.`PropertySubtype3` = 'House on Lot' OR
`props-main`.`PropertySubtype1` = 'Own Your Own' OR `props-main`.`PropertySubtype2` = 'Own Your Own' OR `props-main`.`PropertySubtype3` = 'Own Your Own' OR
`props-main`.`PropertySubtype1` = 'Rural Residence' OR `props-main`.`PropertySubtype2` = 'Rural Residence' OR `props-main`.`PropertySubtype3` = 'Rural Residence' OR
`props-main`.`PropertySubtype1` = 'Rural/Residence' OR `props-main`.`PropertySubtype2` = 'Rural/Residence' OR `props-main`.`PropertySubtype3` = 'Rural/Residence' OR
`props-main`.`PropertySubtype1` LIKE '%fam%' OR `props-main`.`PropertySubtype2` LIKE '%fam%' OR `props-main`.`PropertySubtype3` LIKE '%fam%'))) AND ((`props-main`.`id` = 1694180 OR `props-main`.`id` = 1716095 OR `props-main`.`id` = 1717434 OR `props-main`.`id` = 1717601 OR `props-main`.`id` = 1717602 OR `props-main`.`id` = 1717603 OR `props-main`.`id` = 1717604 OR `props-main`.`id` = 1717605 OR `props-main`.`id` = 1716966 OR `props-main`.`id` = 1716595 OR `props-main`.`id` = 1719903 OR `props-main`.`id` = 1718910 OR `props-main`.`id` = 1718896 OR `props-main`.`id` = 1687706 OR `props-main`.`id` = 1685636 OR `props-main`.`id` = 1704295 OR `props-main`.`id` = 1703800 OR `props-main`.`id` = 1701727 OR `props-main`.`id` = 1703501 OR `props-main`.`id` = 1695954 OR `props-main`.`id` = 1655334 OR `props-main`.`id` = 1716768 OR `props-main`.`id` = 1666180 OR `props-main`.`id` = 1708116 OR `props-main`.`id` = 1704149 OR `props-main`.`id` = 1704013 OR `props-main`.`id` = 1625902 OR `props-main`.`id` = 1716564 OR `props-main`.`id` = 1714763 OR `props-main`.`id` = 1666082 OR `props-main`.`id` = 1677614 OR `props-main`.`id` = 1702295 OR `props-main`.`id` = 1689840 OR `props-main`.`id` = 1714047 OR `props-main`.`id` = 1687593 OR `props-main`.`id` = 1687674 OR `props-main`.`id` = 1721266 OR `props-main`.`id` = 1718871 OR `props-main`.`id` = 1700844 OR `props-main`.`id` = 1718863 OR `props-main`.`id` = 1719044 OR `props-main`.`id` = 1719034 OR `props-main`.`id` = 1718510 OR `props-main`.`id` = 1718429 OR `props-main`.`id` = 1718458 OR `props-main`.`id` = 1704827 OR `props-main`.`id` = 1713814 OR `props-main`.`id` = 1704840 OR `props-main`.`id` = 1700853 OR `props-main`.`id` = 1687696 OR `props-main`.`id` = 1684463 OR `props-main`.`id` = 1687690 OR `props-main`.`id` = 1705132 OR `props-main`.`id` = 1708204 OR `props-main`.`id` = 1705139 OR `props-main`.`id` = 1708223 OR `props-main`.`id` = 1703905 OR `props-main`.`id` = 1666319 OR `props-main`.`id` = 1701326 OR `props-main`.`id` = 1687628 OR `props-main`.`id` = 1717402 OR `props-main`.`id` = 1703925 OR `props-main`.`id` = 1696601 OR `props-main`.`id` = 1703646 OR `props-main`.`id` = 1703657 OR `props-main`.`id` = 1703656 OR `props-main`.`id` = 1702537 OR `props-main`.`id` = 1721509 OR `props-main`.`id` = 1722534 OR `props-main`.`id` = 1717940 OR `props-main`.`id` = 1712355 OR `props-main`.`id` = 1712541 OR `props-main`.`id` = 1709899 OR `props-main`.`id` = 1709957 OR `props-main`.`id` = 1674929 OR `props-main`.`id` = 1717964 OR `props-main`.`id` = 1722396 OR `props-main`.`id` = 1718019 OR `props-main`.`id` = 1665722 OR `props-main`.`id` = 1717272 OR `props-main`.`id` = 1717216 OR `props-main`.`id` = 1645467 OR `props-main`.`id` = 1645426 OR `props-main`.`id` = 1714048 OR `props-main`.`id` = 1701999 OR `props-main`.`id` = 1714054 OR `props-main`.`id` = 1721524 OR `props-main`.`id` = 1716191 OR `props-main`.`id` = 1716166 OR `props-main`.`id` = 1719419 OR `props-main`.`id` = 91486 OR `props-main`.`id` = 1701951 OR `props-main`.`id` = 1665857 OR `props-main`.`id` = 1709463 OR `props-main`.`id` = 1704611 OR `props-main`.`id` = 1713573 OR `props-main`.`id` = 1696506 OR `props-main`.`id` = 1683078 OR `props-main`.`id` = 1706819 OR `props-main`.`id` = 1667788 OR `props-main`.`id` = 1715021 OR `props-main`.`id` = 1714993 OR `props-main`.`id` = 1715010 OR `props-main`.`id` = 1711485 OR `props-main`.`id` = 1711501 OR `props-main`.`id` = 1717498 OR `props-main`.`id` = 1693727 OR `props-main`.`id` = 1693832 OR `props-main`.`id` = 1703830 OR `props-main`.`id` = 1703810 OR `props-main`.`id` = 1684942 OR `props-main`.`id` = 1687174 OR `props-main`.`id` = 1720098 OR `props-main`.`id` = 1702353 OR `props-main`.`id` = 1718550 OR `props-main`.`id` = 1718266 OR `props-main`.`id` = 1666171 OR `props-main`.`id` = 1676323 OR `props-main`.`id` = 1676330)) AND CONCAT(`MLSFeed`,`MLNumber`) != 'crmlsML82043625' AND `props-main`.`PictureCount` > 0 AND (`props-main`.`ExpiredDate` >= '2026-04-18' OR `props-main`.`ExpiredDate` IS NULL OR TRIM(`props-main`.`ExpiredDate`) = '') AND `props-main`.`Status` != 'Unapproved' AND (`props-main`.`DupeOf` IS NULL OR TRIM(`props-main`.`DupeOf`) = '') AND `props-main`.`Delayed` = 0 GROUP BY `props-main`.`id` ORDER BY RAND();
0
The data relating to real estate for sale on this web site comes in part from the Internet Data eXchange (IDX) of the Multiple Listing Service. Real estate listings are marked with the IDX logo and detailed information about them includes the name of the listing broker and the name of the listing agent. The information being provided is for consumers' personal, non-commercial use and may not be used for any purpose other than to identify prospective properties consumer may be interested in purchasing. Information herein deemed reliable but not guaranteed, representations are approximate, individual verification recommended.