FBpixel

Get More Info

Print A Flyer

Get A Home Loan

Share

7500 Morro Rd

Atascadero, CA 93422

Copy Link Get Directions

$285,000

1,280 sq ft

7500 Morro Rd

Atascadero, CA 93422

Get Directions
Listed On: 11/02/2025
Status: Active
Listing Number: NS25251471 (CRMLS)

Schedule a Tour

Contact Info


Advertising Agent:

London Properties, Ltd.
London Properties, Ltd. 559.436.4071 Email Agent
Property Description
Listing Agent: Richard Shannon, Century 21 Masters
Listing Co-Agent: Maggie Romero, Century 21 Masters

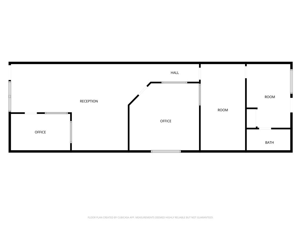
Conveniently located in the Golden West Professional Center, this well maintained end unit has a well thought out floor plan that allows for a variety of office/professional applications. The unit features Two large offices, an open bull pen style work area near the reception area, storage room with built-in shelving and cabinetry, a large restroom with storage and more. There is also ample parking in front as well as behind the building. Two entries, one directly to employee parking. Excellent signage visibility from Morro Road.
Property Type
Commercial Sale
Property Sub Type
Office
Year Built
1987
Year Built Source
Assessor
Special Listing Conditions
Standard
Stories Total
1
Entry Level
1
Building Status
Existing
Price Per Square Foot
$223
Days On London
199
County Or Parish
San Luis Obispo
Directions
From 101 South, take exit 219 for Morro Rd. Follow Morro Rd for about half a mile. 7500 Morro Rd will be on the Right in the Golden West Professional Center.
Laundry Features
None
Signage
Sign on Building
Utilities
Water Available, Sewer Connected, Electricity Connected
Water Source
Public
Condo Area
1280
Condo Area Units
Square Feet
Land Use
Office
Common Interest
Condominium
Parcel Number
031053013
Additional Parcels Y/N
No
Zoning
CP
Park Name
Golden West Professional Center

The data relating to real estate for sale on this web site comes in part from the Internet Data eXchange (IDX) of the Multiple Listing Service. Real estate listings are marked with the IDX logo and detailed information about them includes the name of the listing broker and the name of the listing agent. The information being provided is for consumers' personal, non-commercial use and may not be used for any purpose other than to identify prospective properties consumer may be interested in purchasing. Information herein deemed reliable but not guaranteed, representations are approximate, individual verification recommended.

Copyright © 2026  London Properties, Ltd. All rights reserved.