FBpixel

Get More Info

Print A Flyer

Get A Home Loan

Share

9220 Carmel

Atascadero, CA 93422

Copy Link Get Directions

$1,050,000

3 bd
  |  
2 ba
  |  
1,702 sq ft
  |  
2.80 acres

9220 Carmel

Atascadero, CA 93422

Get Directions
Listed On: 12/18/2025
Status: Active
Listing Number: NS25276020 (CRMLS)

Schedule a Tour

Contact Info


Advertising Agent:

London Properties, Ltd.
London Properties, Ltd. 559.436.4071 Email Agent
Property Description
Listing Agent: Jaime Silveira, Malik Real Estate Group, Inc.

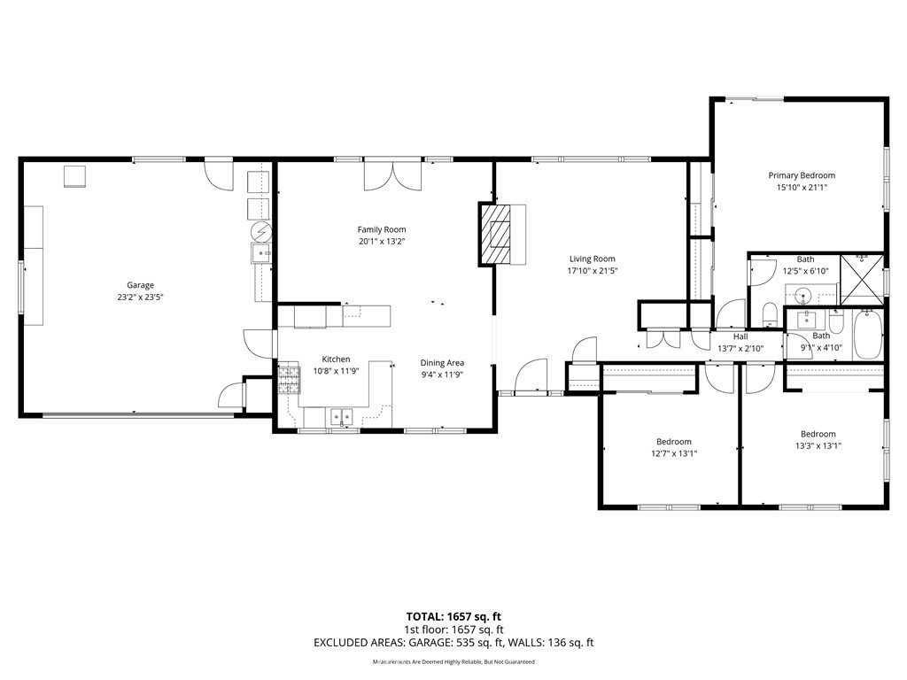
Welcome to this ideal country home offering 1702 sf, 3 bedrooms and 2 bathrooms, perfectly situated on 2.8 usable acres. From the moment you arrive, you'll appreciate the lush landscaping and well-maintained setting that create an inviting first impression. A brick paver walkway leads to the beautiful front door and into a home filled with warmth and charm. Inside, you'll be pleasantly surprised by the open living room featuring a wood-burning stove, elegant crown molding and a large picture window that fills the space with natural light while showcasing peaceful backyard views. Beyond the living room, the main living area continues the welcoming feel. The family room also features crown molding and a large French door that perfectly frames the stunning property beyond. The family room flows seamlessly into the dining area and delightful kitchen, complete with granite countertops, abundant cabinetry and stainless steel appliances. On the opposite side of the home, you'll find two spacious guest bedrooms, a main bathroom and the private primary suite. The primary bedroom offers two closets, a slider leading directly to the backyard and an updated ensuite bathroom. Step outside and discover a fantastic covered back patio, perfect for relaxing or entertaining, along with a spa where you can unwind and soak away the day. Following the driveway toward the back of the property reveals the crown jewel: a large stable with two stalls, tack room, power and water. Adjacent is an approximately 1000 sf barn/workshop with power and lighting, plus an open area ideal for exercising horses. The property also features a large fenced pasture with a shelter equipped with power and water, perfect for horses or other 4 legged companions. In addition to its impressive amenities, the location is exceptional. Situated at the south end of Atascadero, the home offers quick and easy freeway access, making travel throughout North and South San Luis Obispo County a breeze. If you've been searching for a property that offers the serenity of country living while being just minutes from town, this is the one. Don't sit on this opportunity-schedule your showing today. Please review the Virtual Tour for additional information.
Property Sub Type
Single Family Residence
Structure Type
House
Year Built
1977
Year Built Source
Assessor
Special Listing Conditions
Standard
Stories Total
1
Levels
One
Number Of Units Total
1
Entry Level
1
Price Per Square Foot
$617
Days On London
105
Cumulative Days On London
105
County Or Parish
San Luis Obispo
New Construction Y/N
No
Property Attached Y/N
No
Cooling Y/N
Yes
Fence Y/N
Yes
Heating Y/N
Yes
Directions
Heading south on El Camino Real turn right onto Carmel, home is on the left
Room Type
Primary Bedroom, Library, Kitchen, Family Room
Heating
Forced Air, Wood Stove
Cooling
Central Air
Laundry Y/N
Yes
Laundry Features
In Garage
Roof
Composition
Door Features
French Doors, Sliding Doors
Window Features
Double Pane Windows
Foundation Details
Slab
Property Condition
Turnkey
Other Structures
Barn(s)
Main Level Bedrooms
3
Bathrooms Full
2
Bathrooms Full And Three Quarter
2
Main Level Bathrooms
2
Room Kitchen Features
Granite Counters
Eating Area
In Kitchen, Area
Appliances Y/N
Yes
Appliances
Water Heater, Disposal, Microwave, Refrigerator, Gas Range, Dishwasher
Room Bathroom Features
Shower in Tub, Shower
Interior Features
Crown Molding, Ceiling Fan(s), Recessed Lighting, Granite Counters
Flooring
Tile, Carpet
Common Walls
No Common Walls
Fireplace Y/N
Yes
Fireplace Features
Wood Burning
Exterior Features
Stable
Pool Features
None
Pool Private Y/N
No
Spa Y/N
Yes
Spa Features
Private
Electric
220 Volts in Garage
Utilities
Natural Gas Connected, Electricity Connected, Water Connected
Water Source
Public
Sewer
Conventional Septic
Parking Y/N
Yes
Parking Total
2.00
Parking Features
Garage, Driveway
Attached Garage Y/N
Yes
Garage Spaces
2.00
Lot Features
Corner Lot, 2-5 Units/Acre, Horse Property Improved
Lot Size Area
121968.0000
Lot Size Units
Square Feet
View Y/N
Yes
View
Neighborhood, Hills
Fencing
Average Condition
Common Interest
None
Parcel Number
059441034
Additional Parcels Y/N
No
Subdivision Name
ATSouthwest(50)
Subdivision Name Other
ATSouthwest(50)
Community Features
Rural
Senior Community Y/N
No
Association Y/N
No
High School District
Atascadero Unified
Inclusions
refrigerator, washer, dryer
Exclusions
bee hives
Lease Considered Y/N
No
Land Lease Y/N
No
Assessments
Unknown

The data relating to real estate for sale on this web site comes in part from the Internet Data eXchange (IDX) of the Multiple Listing Service. Real estate listings are marked with the IDX logo and detailed information about them includes the name of the listing broker and the name of the listing agent. The information being provided is for consumers' personal, non-commercial use and may not be used for any purpose other than to identify prospective properties consumer may be interested in purchasing. Information herein deemed reliable but not guaranteed, representations are approximate, individual verification recommended.

Copyright © 2026  London Properties, Ltd. All rights reserved.