FBpixel

Get More Info

Print A Flyer

Get A Home Loan

Share

1609 Tanager Ct

Templeton, CA 93465

Copy Link Get Directions

$1,895,000

4 bd
  |  
3 ba
  |  
2,750 sq ft
  |  
0.91 acre

1609 Tanager Ct

Templeton, CA 93465

Get Directions
Listed On: 03/05/2026
Status: Active
Listing Number: NS26045855 (CRMLS)

Schedule a Tour

Contact Info


Advertising Agent:

London Properties, Ltd.
London Properties, Ltd. 559.436.4071 Email Agent
Property Description
Listing Agent: Dianna Vonderheide, Vineyard Professional Real Estate

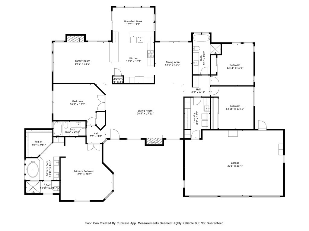
Don't miss out on this rare and lovingly remodeled estate nestled at the end of a peaceful cul-de-sac in the highly sought after Peacock Ranch area. This beautifully updated westside Templeton home offers the perfect balance of luxury, privacy, and Central Coast indoor/outdoor living. Set on a fully usable park-like one-acre lot with mature trees, this property is a true sanctuary. Entering the property you will be greeted by a custom paver driveway, meticulous landscaping with custom lighting, & new professional paint and light fixtures. The thoughtfully designed single-level layout features 4 bedrooms and 3 bathrooms with a split-wing design. This home has multiple living areas, vaulted ceilings, crown moldings, & an incredible kitchen. Step inside to find bright, airy living spaces with new luxury hardwood flooring and cozy up around either of the two fireplaces. New premium carpeting brings extra comfort to the bedroom spaces and in the primary suite you will find a spacious bedroom with cozy seating area, a spacious walk-in closet, & renovated bathroom with dual-vanity, soaking bathtub, & walk-in shower. At the heart of the home, the fully remodeled kitchen impresses with custom soft-close cabinetry, stunning quartz countertops, & quality finishes, ready for gourmet cooking or casual gatherings. The kitchen also features upgraded appliances, a large breakfast bar & an inviting sitting area with large windows that let the natural sunlight in. Outside is an oasis of lush lawn & the private well makes irrigating simple & efficient. While the mature trees & park-like setting create an unparalleled sense of peaceful seclusion, there are multiple patios & entertaining spots as well. Whether relaxing under the canopy of trees, entertaining under the stars, or dreaming up future plans like a pool, vineyard, or ADU, this property has endless potential. The oversized, fully finished 3-car garage with custom epoxy flooring adds even more value and versatility. Additionally the home is equipped with newer HVAC and tankless water heater systems. 220V is installed in the garage ready for EV charging. If you need even more storage, a large shed in the backyard provides ample room. Located just minutes from downtown Templeton's charming shops, award-winning schools, restaurants, renowned wineries, & only a 25 min drive to multiple beaches, this rare offering delivers the lifestyle you've been searching for. Call your Realtor today for your tour!
Property Sub Type
Single Family Residence
Structure Type
House
Year Built
1990
Year Built Source
Assessor
Special Listing Conditions
Standard
Stories Total
1
Levels
One
Number Of Units Total
1
Entry Level
1
Price Per Square Foot
$689
Days On London
80
Cumulative Days On London
80
County Or Parish
San Luis Obispo
New Construction Y/N
No
Property Attached Y/N
No
Cooling Y/N
Yes
Heating Y/N
Yes
Directions
peacock ranch
Room Type
Walk-In Closet, Primary Bedroom, Laundry, All Bedrooms Down, Main Floor Primary Bedroom, Kitchen, Living Room, Main Floor Bedroom, Primary Suite, Media Room, Primary Bathroom
Heating
Forced Air
Cooling
Central Air
Laundry Y/N
Yes
Laundry Features
Individual Room
Roof
Tile
Property Condition
Updated/Remodeled
Other Structures
Shed(s)
Main Level Bedrooms
4
Bathrooms Full
3
Bathrooms Full And Three Quarter
3
Main Level Bathrooms
3
Room Kitchen Features
Kitchen Open to Family Room, Quartz Counters, Remodeled Kitchen, Built-in Trash/Recycling, Self-closing drawers
Eating Area
Breakfast Counter / Bar, Breakfast Nook
Appliances Y/N
Yes
Appliances
Refrigerator, Tankless Water Heater, Gas Range, Dishwasher
Room Bathroom Features
Upgraded, Quartz Counters, Closet in bathroom, Exhaust fan(s), Main Floor Full Bath, Separate tub and shower, Bathtub, Double Sinks in Primary Bath, Remodeled, Shower
Interior Features
Quartz Counters, Open Floorplan, Cathedral Ceiling(s)
Flooring
Tile, Carpet, Wood
Common Walls
No Common Walls
Fireplace Y/N
Yes
Fireplace Features
Living Room, Family Room
Pool Features
None
Pool Private Y/N
No
Spa Y/N
No
Spa Features
None
Patio Y/N
Yes
Patio And Porch Features
Covered, Concrete, Patio
Electric
220V Other - See Remarks
Utilities
Natural Gas Connected, Phone Available, Cable Available, Electricity Connected, Water Connected
Water Source
See Remarks, Public
Sewer
Public Sewer
Parking Y/N
Yes
Parking Total
3.00
Parking Features
Garage - Three Door
Attached Garage Y/N
Yes
Garage Spaces
3.00
Lot Features
Cul-De-Sac, Landscaped, Front Yard, Lawn
Lot Size Area
39600.0000
Lot Size Units
Square Feet
View Y/N
Yes
View
Trees/Woods, See Remarks
Common Interest
None
Parcel Number
040183011
Additional Parcels Y/N
No
Zoning
RS
Subdivision Name
TempWest(100)
Subdivision Name Other
TempWest(100)
Community Features
Sidewalks
Senior Community Y/N
No
Association Y/N
No
High School District
Templeton Unified
Lease Considered Y/N
No
Land Lease Y/N
No
Assessments
Unknown
Tax Lot
11
Tax Tract Number
1628
Tax Census Tract
127.07

The data relating to real estate for sale on this web site comes in part from the Internet Data eXchange (IDX) of the Multiple Listing Service. Real estate listings are marked with the IDX logo and detailed information about them includes the name of the listing broker and the name of the listing agent. The information being provided is for consumers' personal, non-commercial use and may not be used for any purpose other than to identify prospective properties consumer may be interested in purchasing. Information herein deemed reliable but not guaranteed, representations are approximate, individual verification recommended.

Copyright © 2026  London Properties, Ltd. All rights reserved.