FBpixel

Get More Info

Print A Flyer

Get A Home Loan

Share

0 Vista Del Osos

Los Osos, CA 93402

Copy Link Get Directions

$435,000

0.35 acre

0 Vista Del Osos

Los Osos, CA 93402

Get Directions
Listed On: 05/24/2021
Status: Active
Listing Number: SC21111184 (CRMLS)

Schedule a Tour

Contact Info


Advertising Agent:

London Properties, Ltd.
London Properties, Ltd. 559.436.4071 Email Agent
Property Description
Listing Agent: Steve Auslender, Dianne Blanchard, Broker

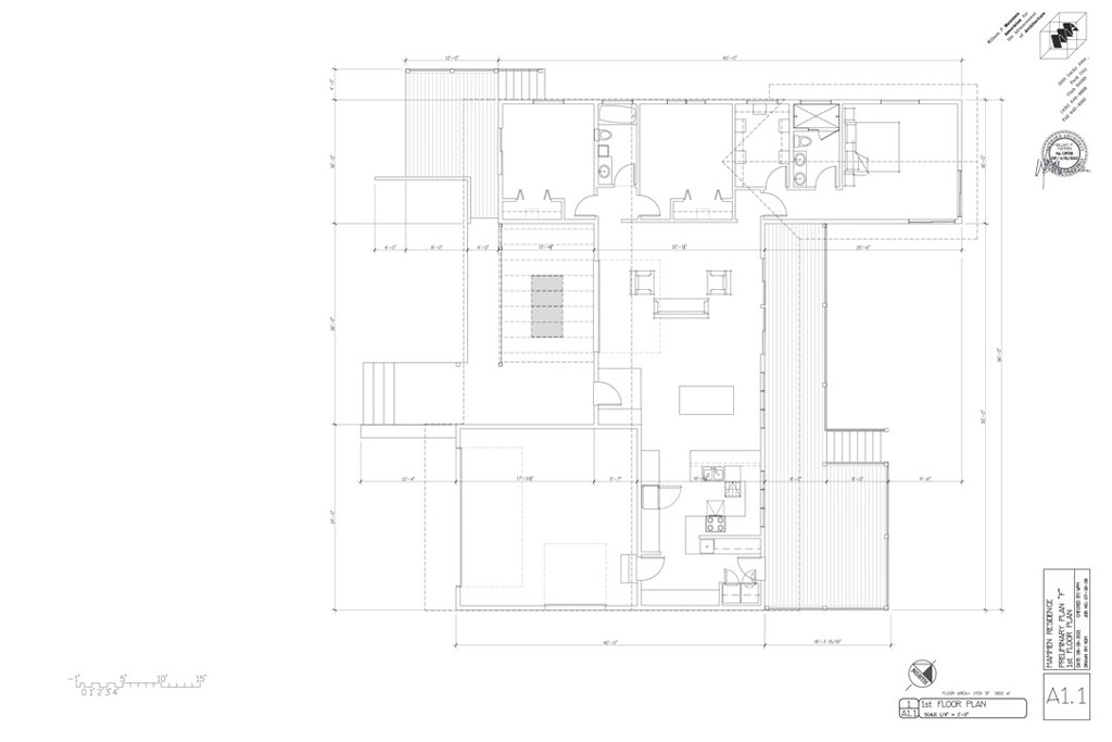
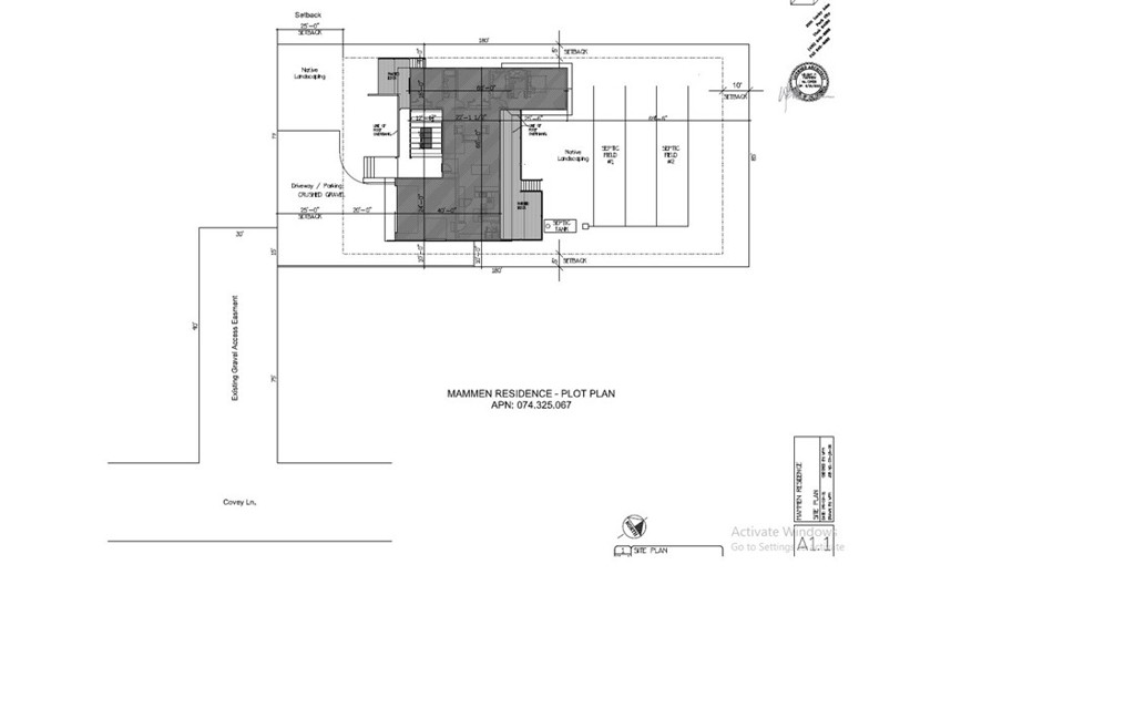
BUILD NOW!!! Owner financing available, Minor Use Permit (MUP) in process, water meter installed, environmental and archeological reports completed, HCP/ITP in place! Building permit next - then choose your finishes! Floor plan, site plan, and elevations submitted with the MUP for a beautiful 1900+ square foot 3-bedroom, 2-bathroom home are included! This private and secluded 1/3+ acre property is located in the sunny Bayview Heights microclimate and has great views of the surrounding hills and mountains. Close to town, shopping, golfing, and Montana de Oro State Park with fantastic hiking, running, mountain biking, and horseback riding trails right on the Pacific Ocean - this property is a rare opportunity to have a brand-new home in Los Osos on the amazing Central Coast of California!
Special Listing Conditions
Standard
Price Per Square Foot
$28
Days On London
1799
Cumulative Days On London
1799
County Or Parish
San Luis Obispo
New Construction Y/N
No
Directions
Los Osos Valley Road to Bayview Heights Dr., Turn left to Covey Lane , Turn left onto gravel road to the gravel driveway on left
Water Source
Public
Lot Features
0-1 Unit/Acre
Lot Size Area
15300.0000
Lot Size Units
Square Feet
Elevation Units
Feet
View Y/N
Yes
View
Dunes, Hills
Common Interest
None
Parcel Number
074325067
Additional Parcels Y/N
No
Zoning
SFR
Neighborhood
Bayview Heights
Subdivision Name
Bayview Heights (570)
Subdivision Name Other
Bayview Heights (570)
Community Features
Horse Trails, Rural, Biking, Hiking, Fishing
Senior Community Y/N
No
Association Y/N
No
Distance To Water Comments
Street
Land Lease Y/N
No
Assessments
Buyer to Assume
Tax Census Tract
107.07
Tax Lot
9

The data relating to real estate for sale on this web site comes in part from the Internet Data eXchange (IDX) of the Multiple Listing Service. Real estate listings are marked with the IDX logo and detailed information about them includes the name of the listing broker and the name of the listing agent. The information being provided is for consumers' personal, non-commercial use and may not be used for any purpose other than to identify prospective properties consumer may be interested in purchasing. Information herein deemed reliable but not guaranteed, representations are approximate, individual verification recommended.

Copyright © 2026  London Properties, Ltd. All rights reserved.