FBpixel

Get More Info

Print A Flyer

Get A Home Loan

Share

8840 Morro Road

Atascadero, CA 93422

Copy Link Get Directions

$550,000

1,464 sq ft

8840 Morro Road

Atascadero, CA 93422

Get Directions
Listed On: 09/26/2025
Status: Active
Listing Number: SC25226108 (CRMLS)

Schedule a Tour

Contact Info


Advertising Agent:

London Properties, Ltd.
London Properties, Ltd. 559.436.4071 Email Agent
Property Description
Listing Agent: Valerie Walla, Century 21 Masters
Listing Co-Agent: Mike Sherer, Century 21 Masters

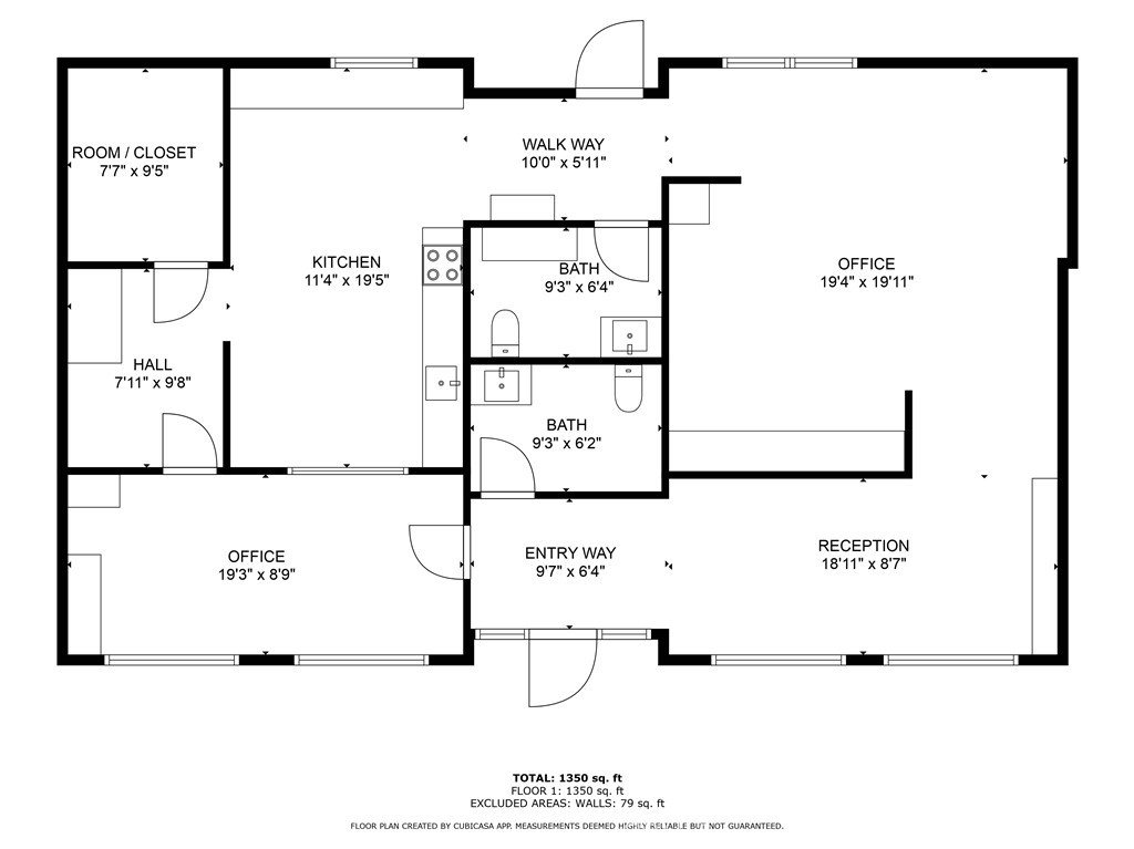
Freestanding commercial condo on Atascadero's westside! Built in 2005, this detached unit offers over 1,400 sq. ft. with two ADA-compliant restrooms, a private office, reception area, storage, break room, and a large open space (see last photo for floor plan). The property provides convenient access off Highway 41 West and is situated near other professional business offices, Atascadero Lake Park, and the Central Coast Zoo. Long-term lease just renewed for an additional three years with the following pay schedule: $2,275.56 per month 11/01/25 - 10/31/26; $2,389.34 per month 11/01/26 - 10/31/27; $2,508.80 per month 11/01/27 - 10/31/28.
Property Type
Commercial Sale
Property Sub Type
Office
Year Built
2006
Special Listing Conditions
Standard
Stories Total
1
Number Of Buildings
1
Entry Level
1
Building Status
Existing
Price Per Square Foot
$376
Days On Market
103
County Or Parish
San Luis Obispo
Investment Property Y/N
Yes
Cooling Y/N
Yes
Heating Y/N
Yes
Directions
West on Morro Road from 101. Property on your right, two driveways before Portola Road.
Heating
Natural Gas
Cooling
Central Air
Laundry Features
None
Condo Area Units
Square Feet
Land Use
Office
Common Interest
Condominium
Parcel Number
031291037
Additional Parcels Y/N
No
Zoning
CR
Number Of Units Leased
1
Professional Management Expense
300.00
Gross Scheduled Income
27306.72
Tax Annual Amount
4806.14
Tax Year
2025

The data relating to real estate for sale on this web site comes in part from the Internet Data eXchange (IDX) of the Multiple Listing Service. Real estate listings are marked with the IDX logo and detailed information about them includes the name of the listing broker and the name of the listing agent. The information being provided is for consumers' personal, non-commercial use and may not be used for any purpose other than to identify prospective properties consumer may be interested in purchasing. Information herein deemed reliable but not guaranteed, representations are approximate, individual verification recommended.

Copyright © 2026  London Properties, Ltd. All rights reserved.