FBpixel

Get More Info

Print A Flyer

Get A Home Loan

Share

2021 Skylark

San Luis Obispo, CA 93401

Copy Link Get Directions

$1,700,000

4 bd
  |  
3 ba
  |  
2,399 sq ft
  |  
0.24 acre

2021 Skylark

San Luis Obispo, CA 93401

Get Directions
Listed On: 03/04/2026
Status: Active
Listing Number: SC26006188 (CRMLS)

Schedule a Tour

Contact Info


Advertising Agent:

London Properties, Ltd.
London Properties, Ltd. 559.436.4071 Email Agent
Property Description
Listing Agent: Terry Gillespie, BHGRE HAVEN PROPERTIES

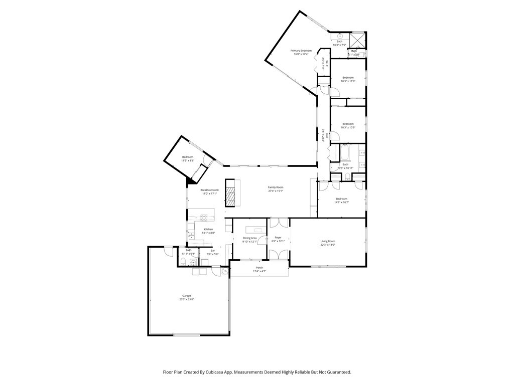
Welcome to 2021 Skylark Lane, a classic San Luis Obispo home located in the highly desirable ''Banana Belt'' neighborhood, known for its mild climate and convenient location. Set on an approximately 10,624± sq. ft. lot, this spacious approximately 2,399± sq. ft. single level residence offers comfort, charm, and wonderful potential. The home features four bedrooms plus a separate office that could easily serve as a fifth bedroom, along with 2.5 bathrooms. Designed for both everyday living and entertaining, the floor plan includes a generous living room and a welcoming family room, creating multiple gathering spaces. Large windows throughout the home bring in natural light, and many of the rooms enjoy relaxing views of the backyard pool, creating a pleasant indoor-outdoor connection. The property retains much of its classic vintage character, offering a warm and nostalgic feel while providing an excellent opportunity for a new owner to update and personalize over time. The backyard pool area offers a private setting to relax, entertain, and enjoy San Luis Obispo's beautiful weather. Ideally situated, the home is close to hospitals, schools, and just minutes from downtown San Luis Obispo, with its restaurants, shops, and vibrant community events. A rare opportunity to own a spacious home in one of SLO's most sought-after microclimates, offering charm, location, and room to make it your own.
Property Sub Type
Single Family Residence
Structure Type
House
Year Built
1962
Year Built Source
Estimated
Special Listing Conditions
Trust
Stories Total
1
Levels
One
Number Of Units Total
1
Entry Level
1
Entry Location
Front
Price Per Square Foot
$709
Days On London
82
Cumulative Days On London
82
County Or Parish
San Luis Obispo
New Construction Y/N
No
Property Attached Y/N
No
Cooling Y/N
Yes
Heating Y/N
Yes
Directions
Lizzie right on Wilding left on Woodland Dr. right on Skylark.
Architectural Style
Ranch
Room Type
All Bedrooms Down, Office
Heating
Forced Air
Cooling
Central Air
Laundry Y/N
Yes
Laundry Features
In Garage
Roof
Composition
Foundation Details
Raised
Main Level Bedrooms
4
Bathrooms Full
1
Bathrooms Full And Three Quarter
2
Bathrooms Three Quarter
1
Bathrooms Half
1
Main Level Bathrooms
3
Appliances Y/N
Yes
Appliances
Freezer, Electric Cooktop
Flooring
Vinyl, Carpet, Wood
Common Walls
No Common Walls
Fireplace Y/N
Yes
Fireplace Features
Wood Burning, Living Room
Pool Features
Private, Heated
Pool Private Y/N
Yes
Utilities
Natural Gas Connected, Phone Available, Sewer Connected, Cable Available, Electricity Connected
Water Source
Public
Sewer
Public Sewer
Parking Y/N
Yes
Parking Total
2.00
Parking Features
Garage
Attached Garage Y/N
Yes
Garage Spaces
2.00
Lot Features
0-1 Unit/Acre
Lot Size Area
10624.0000
Lot Size Units
Square Feet
View Y/N
Yes
View
Mountain(s), Neighborhood, Pool
Common Interest
None
Parcel Number
003592005
Additional Parcels Y/N
No
Subdivision Name
San Luis Obispo(380)
Subdivision Name Other
San Luis Obispo(380)
Community Features
Curbs
Senior Community Y/N
No
Association Y/N
No
High School District
San Luis Coastal Unified
High School
San Luis Obispo
Inclusions
Washer and Dryer, Freezer
Lease Considered Y/N
No
Land Lease Y/N
No
Assessments
Unknown
Tax Lot
11
Tax Tract Number
118

The data relating to real estate for sale on this web site comes in part from the Internet Data eXchange (IDX) of the Multiple Listing Service. Real estate listings are marked with the IDX logo and detailed information about them includes the name of the listing broker and the name of the listing agent. The information being provided is for consumers' personal, non-commercial use and may not be used for any purpose other than to identify prospective properties consumer may be interested in purchasing. Information herein deemed reliable but not guaranteed, representations are approximate, individual verification recommended.

Copyright © 2026  London Properties, Ltd. All rights reserved.