FBpixel

Get More Info

Print A Flyer

Get A Home Loan

Share

3970 Orcutt

San Luis Obispo, CA 93401

Copy Link Get Directions

$3,000,000

10,000 sq ft

3970 Orcutt

San Luis Obispo, CA 93401

Get Directions
Listed On: 03/19/2026
Status: Active
Listing Number: SC26059988 (CRMLS)

Schedule a Tour

Contact Info


Advertising Agent:

London Properties, Ltd.
London Properties, Ltd. 559.436.4071 Email Agent
Property Description
Listing Agent: Patrick Smith, Avila Beach Realty Inc.

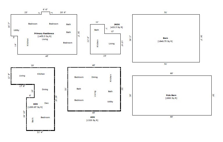
Edna Ranch offers a rare opportunity to partner in a legacy asset that blends classic ranch living with significant long-term development potential-just minutes from downtown San Luis Obispo. This offering is for a 50% joint venture interest, ideal for an investor seeking both current income and future upside. Set across expansive acreage in the heart of Edna Valley, the property features sweeping panoramic views of the Cuesta Mountain Range and the iconic Nine Sisters. The ranch is improved with four existing residences, providing immediate utility and income potential. The land is rich with natural features, including three reservoirs, two creeks, mature trees, and rolling terrain that enhances both privacy and scenic appeal. Water resources are supported by three productive wells with approximate yields of 20, 14, and 5 gallons per minute. Two all-weather access roads from Orcutt Road provide convenient and reliable access throughout the property. Strategically positioned adjacent to city limits and within the City's Sphere of Influence, the property is identified for future annexation-currently anticipated around 2028 per LAFCO guidance-creating a compelling long-term investment opportunity. A prior ownership vision contemplated subdivision into 8-9 legal parcels, with remaining acreage suited for higher-density residential development, including both multifamily and single-family housing. This offering represents a 50% joint venture interest with existing ownership, with an investment target of $3,000,000.
Property Type
Commercial Sale
Property Sub Type
Specialty
Special Listing Conditions
Standard
Stories Total
1
Entry Level
1
Building Status
Existing
Price Per Square Foot
$300
Days On London
62
County Or Parish
San Luis Obispo
Directions
3970 Orcutt Road
Laundry Features
None
Water Source
Well
Condo Area Units
Square Feet
Common Interest
None
Parcel Number
044411021
Additional Parcels Y/N
No

The data relating to real estate for sale on this web site comes in part from the Internet Data eXchange (IDX) of the Multiple Listing Service. Real estate listings are marked with the IDX logo and detailed information about them includes the name of the listing broker and the name of the listing agent. The information being provided is for consumers' personal, non-commercial use and may not be used for any purpose other than to identify prospective properties consumer may be interested in purchasing. Information herein deemed reliable but not guaranteed, representations are approximate, individual verification recommended.

Copyright © 2026  London Properties, Ltd. All rights reserved.