Listing Agent: Deborah Brooks, Berkshire Hathaway HomeServices California Properties
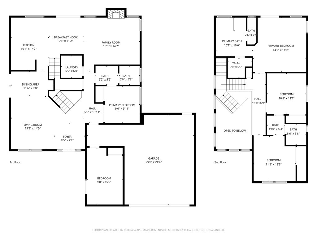
Welcome to this spacious two-story home offering approximately 2,247± sq ft with 4 bedrooms plus a versatile bonus room. Designed for comfortable living and entertaining, the home features formal living and dining areas, along with a separate family room with fireplace just off the kitchen. A striking split staircase creates an elegant entry from both main living spaces. The kitchen includes a center island and opens to a casual dining area between the kitchen and family room, with easy access to a covered patio for indoor-outdoor living. A downstairs bedroom provides flexibility for guests or a home office. Upstairs, the primary en suite offers a private balcony with mountain views,along with 2 additional bedrooms and jack & Jill full bath. The backyard is generously sized with plenty of room to add a pool or create your ideal outdoor retreat.Additional highlights include a bonus room conversion from the third-car garage with heating, air conditioning, and a closet-ideal for a gym, office, or flex space. Located within the highly regarded Clovis Unified School District and near Cedarwood Elementary School, this home offers both convenience and versatility.
Property Sub Type
Single Family Residence
Structure Type
House
Year Built
1994
Year Built Source
Public Records
Special Listing Conditions
Standard
Stories Total
2
Levels
Two
Number Of Units Total
1
Entry Level
1
Entry Location
Main
Price Per Square Foot
$244
Days On London
0
Cumulative Days On London
0
County Or Parish
Fresno
New Construction Y/N
No
Property Attached Y/N
No
Cooling Y/N
Yes
Directions
South of Herndon Right on N. Conventry Right on Fremont
Architectural Style
Bungalow
Room Type
Jack & Jill, Walk-In Closet, Separate Family Room, Laundry, Office, Kitchen, Primary Suite
Cooling
Central Air
Laundry Y/N
Yes
Laundry Features
Individual Room
Roof
Tile
Main Level Bedrooms
1
Bathrooms Full
3
Bathrooms Full And Three Quarter
3
Main Level Bathrooms
1
Flooring
Vinyl
Common Walls
No Common Walls
Fireplace Y/N
Yes
Fireplace Features
Family Room
Pool Features
None
Pool Private Y/N
No
Patio Y/N
Yes
Patio And Porch Features
Porch, Patio
Water Source
Public
Sewer
Public Sewer
Parking Y/N
Yes
Parking Total
2.00
Parking Features
Garage
Attached Garage Y/N
Yes
Garage Spaces
2.00
Lot Features
Cul-De-Sac
Lot Size Area
6000.0000
Lot Size Units
Square Feet
View Y/N
Yes
View
Mountain(s)
Common Interest
None
Parcel Number
55311110
Additional Parcels Y/N
No
Community Features
Gutters, Curbs, Sidewalks
Senior Community Y/N
No
Association Y/N
No
High School District
Clovis Unified
Lease Considered Y/N
No
Land Lease Y/N
No
Assessments
Unknown
Tax Lot
10
Tax Tract Number
4517
71109
A: SELECT * FROM `lpdotcom`.`props-main` WHERE CAST(`props-main`.`ListingPrice` AS DECIMAL) >= 521550 AND CAST(`props-main`.`ListingPrice` AS DECIMAL) <= 576450 AND CAST(`props-main`.`Bedrooms` AS DECIMAL) >= '4' AND CAST(`props-main`.`Bathrooms` AS DECIMAL(10,5)) >= '3' AND CAST(`props-main`.`SquareFootage` AS DECIMAL) >= 1997 AND CAST(`props-main`.`SquareFootage` AS DECIMAL) <= 2497 AND ((`props-main`.`PropertyType` = 'Residential' AND (
`props-main`.`PropertySubtype1` = '1 House on Lot' OR `props-main`.`PropertySubtype2` = '1 House on Lot' OR `props-main`.`PropertySubtype3` = '1 House on Lot' OR
`props-main`.`PropertySubtype1` = 'Cabin' OR `props-main`.`PropertySubtype2` = 'Cabin' OR `props-main`.`PropertySubtype3` = 'Cabin' OR
`props-main`.`PropertySubtype1` = 'House on Lot' OR `props-main`.`PropertySubtype2` = 'House on Lot' OR `props-main`.`PropertySubtype3` = 'House on Lot' OR
`props-main`.`PropertySubtype1` = 'Own Your Own' OR `props-main`.`PropertySubtype2` = 'Own Your Own' OR `props-main`.`PropertySubtype3` = 'Own Your Own' OR
`props-main`.`PropertySubtype1` = 'Rural Residence' OR `props-main`.`PropertySubtype2` = 'Rural Residence' OR `props-main`.`PropertySubtype3` = 'Rural Residence' OR
`props-main`.`PropertySubtype1` = 'Rural/Residence' OR `props-main`.`PropertySubtype2` = 'Rural/Residence' OR `props-main`.`PropertySubtype3` = 'Rural/Residence' OR
`props-main`.`PropertySubtype1` LIKE '%fam%' OR `props-main`.`PropertySubtype2` LIKE '%fam%' OR `props-main`.`PropertySubtype3` LIKE '%fam%'))) AND ((`props-main`.`id` = 1722918 OR `props-main`.`id` = 1697275 OR `props-main`.`id` = 1721031 OR `props-main`.`id` = 1719543 OR `props-main`.`id` = 1721610 OR `props-main`.`id` = 1718568 OR `props-main`.`id` = 1718053 OR `props-main`.`id` = 1718060 OR `props-main`.`id` = 1718054 OR `props-main`.`id` = 1718959 OR `props-main`.`id` = 1695955 OR `props-main`.`id` = 1705332 OR `props-main`.`id` = 1704482 OR `props-main`.`id` = 1723088 OR `props-main`.`id` = 1721948 OR `props-main`.`id` = 1719513 OR `props-main`.`id` = 1692117 OR `props-main`.`id` = 1711140 OR `props-main`.`id` = 1720527 OR `props-main`.`id` = 1717177 OR `props-main`.`id` = 1717166 OR `props-main`.`id` = 1717174 OR `props-main`.`id` = 1717180 OR `props-main`.`id` = 1717194 OR `props-main`.`id` = 1703915 OR `props-main`.`id` = 1717520 OR `props-main`.`id` = 1721724 OR `props-main`.`id` = 1681482 OR `props-main`.`id` = 1724527 OR `props-main`.`id` = 1717599 OR `props-main`.`id` = 1711200 OR `props-main`.`id` = 1718677 OR `props-main`.`id` = 1715688 OR `props-main`.`id` = 1720863 OR `props-main`.`id` = 1717400 OR `props-main`.`id` = 1700055 OR `props-main`.`id` = 1724473 OR `props-main`.`id` = 165469 OR `props-main`.`id` = 1685150 OR `props-main`.`id` = 1721535 OR `props-main`.`id` = 1721541 OR `props-main`.`id` = 1721492 OR `props-main`.`id` = 1712341 OR `props-main`.`id` = 1720270 OR `props-main`.`id` = 1719672 OR `props-main`.`id` = 1718239 OR `props-main`.`id` = 1721740 OR `props-main`.`id` = 1702478 OR `props-main`.`id` = 167463 OR `props-main`.`id` = 1700881 OR `props-main`.`id` = 1723945 OR `props-main`.`id` = 1694830 OR `props-main`.`id` = 189650 OR `props-main`.`id` = 1720830 OR `props-main`.`id` = 1721860 OR `props-main`.`id` = 1718789 OR `props-main`.`id` = 1722972 OR `props-main`.`id` = 1692098 OR `props-main`.`id` = 1692107 OR `props-main`.`id` = 1723908 OR `props-main`.`id` = 1717261 OR `props-main`.`id` = 1721120 OR `props-main`.`id` = 1724060 OR `props-main`.`id` = 104849 OR `props-main`.`id` = 1723006 OR `props-main`.`id` = 1693905 OR `props-main`.`id` = 1715779 OR `props-main`.`id` = 656567 OR `props-main`.`id` = 1718249 OR `props-main`.`id` = 1718246 OR `props-main`.`id` = 1723835 OR `props-main`.`id` = 1723817 OR `props-main`.`id` = 1723867 OR `props-main`.`id` = 1724335 OR `props-main`.`id` = 1722482 OR `props-main`.`id` = 1723776 OR `props-main`.`id` = 1721879 OR `props-main`.`id` = 1724299 OR `props-main`.`id` = 1719775 OR `props-main`.`id` = 1724553 OR `props-main`.`id` = 1724546 OR `props-main`.`id` = 1720480 OR `props-main`.`id` = 1721507 OR `props-main`.`id` = 1718676 OR `props-main`.`id` = 1694317 OR `props-main`.`id` = 1723463 OR `props-main`.`id` = 1723788 OR `props-main`.`id` = 1719566 OR `props-main`.`id` = 471337 OR `props-main`.`id` = 1704367 OR `props-main`.`id` = 1723559 OR `props-main`.`id` = 1723131 OR `props-main`.`id` = 1715597 OR `props-main`.`id` = 241157 OR `props-main`.`id` = 1689035 OR `props-main`.`id` = 1721072 OR `props-main`.`id` = 1692208 OR `props-main`.`id` = 1716972 OR `props-main`.`id` = 1718254 OR `props-main`.`id` = 1712495 OR `props-main`.`id` = 1706831 OR `props-main`.`id` = 1704573 OR `props-main`.`id` = 1722430 OR `props-main`.`id` = 1722623 OR `props-main`.`id` = 1713847 OR `props-main`.`id` = 1722847 OR `props-main`.`id` = 1722842 OR `props-main`.`id` = 1716326 OR `props-main`.`id` = 1716751 OR `props-main`.`id` = 1689212 OR `props-main`.`id` = 1713154 OR `props-main`.`id` = 1689657 OR `props-main`.`id` = 1710090 OR `props-main`.`id` = 1724472 OR `props-main`.`id` = 439522 OR `props-main`.`id` = 1716508 OR `props-main`.`id` = 1716294 OR `props-main`.`id` = 1720629 OR `props-main`.`id` = 1716286 OR `props-main`.`id` = 1717456 OR `props-main`.`id` = 1717420 OR `props-main`.`id` = 1717431 OR `props-main`.`id` = 1717440 OR `props-main`.`id` = 1715709 OR `props-main`.`id` = 1721608 OR `props-main`.`id` = 1720435 OR `props-main`.`id` = 1717439 OR `props-main`.`id` = 1720820 OR `props-main`.`id` = 1720797 OR `props-main`.`id` = 1720901)) AND CONCAT(`MLSFeed`,`MLNumber`) != 'crmlsSC26079269' AND `props-main`.`PictureCount` > 0 AND (`props-main`.`ExpiredDate` >= '2026-04-30' OR `props-main`.`ExpiredDate` IS NULL OR TRIM(`props-main`.`ExpiredDate`) = '') AND `props-main`.`Status` != 'Unapproved' AND (`props-main`.`DupeOf` IS NULL OR TRIM(`props-main`.`DupeOf`) = '') AND `props-main`.`Delayed` = 0 GROUP BY `props-main`.`id` ORDER BY RAND();
3
Similar Properties
$549,000
4
3
2,247
0.14
2611 Fremont Ave
Clovis, CA 93611
$545,000
4
3
2,379
0.10
3029 Wrenwood Ave
Clovis, CA 93619
$525,000
4
3
2,379
0.10
603 Kaweah Ave
Clovis, CA 93619
The data relating to real estate for sale on this web site comes in part from the Internet Data eXchange (IDX) of the Multiple Listing Service. Real estate listings are marked with the IDX logo and detailed information about them includes the name of the listing broker and the name of the listing agent. The information being provided is for consumers' personal, non-commercial use and may not be used for any purpose other than to identify prospective properties consumer may be interested in purchasing. Information herein deemed reliable but not guaranteed, representations are approximate, individual verification recommended.