FBpixel

Get More Info

Print A Flyer

Get A Home Loan

Share

0 0 W Jayne Ave

Coalinga, CA 93210

Copy Link Get Directions

$225,000

9.77 acres

0 0 W Jayne Ave

Coalinga, CA 93210

Get Directions
Listed On: 12/13/2024
Status: Active
Listing Number: 622636 (Fresno MLS)

Schedule a Tour

Contact Info


Presented By:

London Properties, Ltd.
London Properties, Ltd. 559.436.4071 Email Agent
Property Description
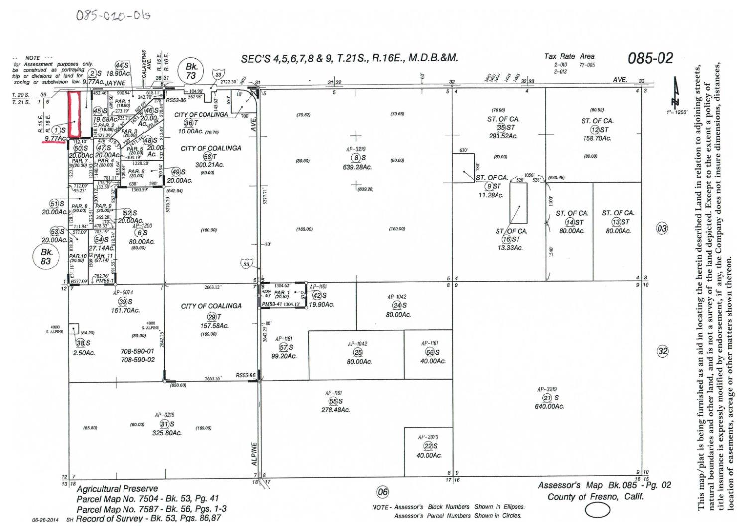
Here's your opportunity to purchase 9.77 acres!! Located in a great location close to Coalinga between Jayne Avenue and Quail Avenue. Great home site as well. Zoned AE- Agricultural Exclusive. Seller financing available!
Property Type
Land
Property Subtype 1
Agricultural
Property Subtype 2
Single Family Residence
Price Per Acre
$23,030
Days On London
486
Cumulative Days On London
1191
County
Fresno
Documents Available
Plot Map, Zoning Restriction
Improvements
None
REO / Bank Owned
No
Cross Street Address
Quail Ave.
Directions
Head West on Jayne Ave. Property will be on the left side on the corner of Jayne Ave. & Quail Ave.
Gas & Electric
None
Sewer / Water
Public Water
Land / Lot Description
Level, 1 - 5 Acres
Accessibility
City Street, State Highway
Site Amenities
Corner
APN
085 020 01 S [PARCEL MAP]
Zoning
AE- Ag Exclusive
School District
Coalinga-Huron Unifi
School Type 1
High School
School Name 1
Coalinga
School Type 2
Junior High School
School Name 2
Coalinga
School Type 3
Grade School
School Name 3
Dawson

Courtesy of Tawnya Stevens, Mid State Realty - [email protected]
Last modified 2 months ago
Fresno MLS last checked for updates 52 minutes ago

The data relating to real estate for sale on this web site comes in part from the Internet Data eXchange (IDX) of the Multiple Listing Service. Real estate listings are marked with the IDX logo and detailed information about them includes the name of the listing broker and the name of the listing agent. The information being provided is for consumers' personal, non-commercial use and may not be used for any purpose other than to identify prospective properties consumer may be interested in purchasing. Information herein deemed reliable but not guaranteed, representations are approximate, individual verification recommended.

Copyright © 2026  London Properties, Ltd. All rights reserved.