FBpixel

Get More Info

Print A Flyer

Get A Home Loan

Share

39851 Mountain Heather Rd

Shaver Lake, CA 93664

Copy Link Get Directions

$120,000

0.66 acre

39851 Mountain Heather Rd

Shaver Lake, CA 93664

Get Directions
Listed On: 08/01/2025
Status: Active
Listing Number: 634821 (Fresno MLS)

Schedule a Tour

Contact Info


Presented By:

London Properties, Ltd.
London Properties, Ltd. 559.436.4071 Email Agent
Property Description
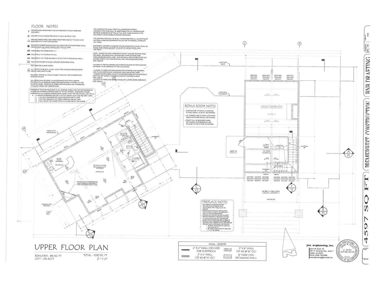
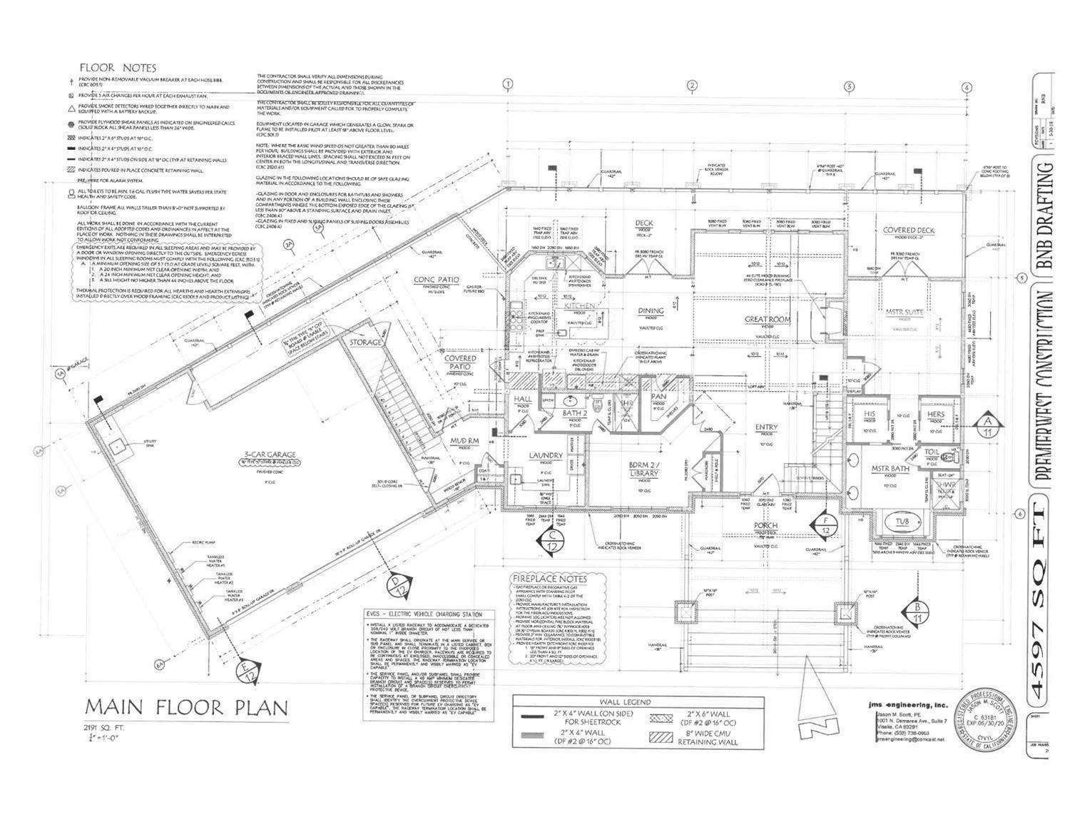
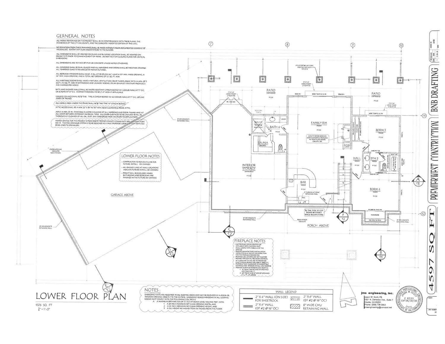
The Shaver Lake Dream is closer than you might think. This lot is located in the desirable Wildflower Village where discerning buyers often find themselves drawn to the surrounding space and walking trails. Sitting in a cul-de-sac and ready to build on, this one has a head start and includes plans for a beautiful 4,597 sq. ft. cabin. or create your own.....lot has been graded and is ready for construction!

The building plans have been approved by Fresno County and the owners have building permits that have all been paid. Buyer would have to pay for new permits under new owners name. The process should be verified by Development Services in Fresno County.
Property Type
Land
Property Subtype 1
Single Family Residence
Price Per Acre
$182,760
Days On London
268
Cumulative Days On London
649
County
Fresno
Improvements
None
REO / Bank Owned
No
Cross Street Address
Wild Rose
Directions
Hwy 168 to Littlefield rd. to Wild Rose to Mountain Heather
Gas & Electric
Public Utilities
Sewer / Water
Public Water, Public Sewer
Land / Lot Description
Irregular
APN
135 200 33 [PARCEL MAP]
Zoning
R1
School District
Sierra Unified
School Type 1
High School
School Name 1
Sierra
School Type 2
Junior High School
School Name 2
Sierra
School Type 3
Grade School
School Name 3
Pine Ridge

Courtesy of Kimberly Hogue, eXp Realty of Northern California, Inc. - [email protected]
Last modified 4 months ago
Fresno MLS last checked for updates 14 minutes ago

The data relating to real estate for sale on this web site comes in part from the Internet Data eXchange (IDX) of the Multiple Listing Service. Real estate listings are marked with the IDX logo and detailed information about them includes the name of the listing broker and the name of the listing agent. The information being provided is for consumers' personal, non-commercial use and may not be used for any purpose other than to identify prospective properties consumer may be interested in purchasing. Information herein deemed reliable but not guaranteed, representations are approximate, individual verification recommended.

Copyright © 2026  London Properties, Ltd. All rights reserved.