FBpixel

Get More Info

Print A Flyer

Get A Home Loan

Share

1220 N Abby St

Fresno, CA 93703

Copy Link Get Directions

$139,500

0.15 acre

1220 N Abby St

Fresno, CA 93703

Get Directions
Listed On: 08/15/2025
Status: Active
Listing Number: 635478 (Fresno MLS)

Schedule a Tour

Contact Info


Presented By:

London Properties, Ltd.
London Properties, Ltd. 559.436.4071 Email Agent
Property Description
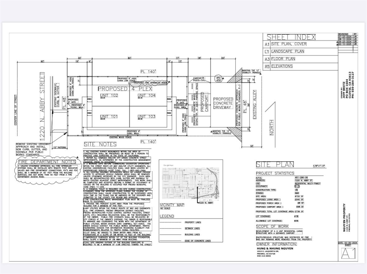
Take advantage of this exceptional opportunity to develop a 4-unit residential living structure. Located in a well-established and desirable neighborhood of Fresno, this project is ready to go with fully approved site plans and permits from the City of Fresno, streamlining your path to construction. Ideal for multi-family investment, long-term rental income, or owner-occupancy with income potential. Whether you're a developer, investor, or builder, this is one you dont want to miss.Seller is a licensed realtor.
Property Type
Land
Property Subtype 1
Commercial
Region
Urban
Potential Use
Multi Family
Price Per Acre
$904,083
Days On London
255
Cumulative Days On London
255
County
Fresno
Improvements
None
REO / Bank Owned
No
Cross Street Address
E Olive
Directions
Blackstone north Left on Olive, Left on Abby
Gas & Electric
Public Utilities
Sewer / Water
Public Water, Public Sewer
Land / Lot Description
Level
APN
451 290 606 [PARCEL MAP]
Zoning
NMX
School District
Fresno Unified
School Type 1
High School
School Name 1
Roosevelt
School Type 2
Junior High School
School Name 2
Tehipite
School Type 3
Grade School
School Name 3
Anthony
Sale Options
Total Parcel Only
Seller Will Consider
Conventional, Cash
1st Loan Type
Free & Clear

Courtesy of Barbara Williams-Cox, Realty Concepts, Ltd. - Fresno - [email protected]
Last modified 3 weeks ago
Fresno MLS last checked for updates 19 minutes ago

The data relating to real estate for sale on this web site comes in part from the Internet Data eXchange (IDX) of the Multiple Listing Service. Real estate listings are marked with the IDX logo and detailed information about them includes the name of the listing broker and the name of the listing agent. The information being provided is for consumers' personal, non-commercial use and may not be used for any purpose other than to identify prospective properties consumer may be interested in purchasing. Information herein deemed reliable but not guaranteed, representations are approximate, individual verification recommended.

Copyright © 2026  London Properties, Ltd. All rights reserved.