FBpixel

Get More Info

Print A Flyer

Get A Home Loan

Share

1 Oak Lane-APN 057-310-016 Ln

Oakhurst, CA 93644

Copy Link Get Directions

$80,000

0.98 acre

1 Oak Lane-APN 057-310-016 Ln

Oakhurst, CA 93644

Get Directions
Listed On: 04/09/2026
Status: Active
Listing Number: 646643 (Fresno MLS)

Schedule a Tour

Contact Info


Presented By:

London Properties, Ltd.
London Properties, Ltd. 559.683.3400 Email Agent
Property Description
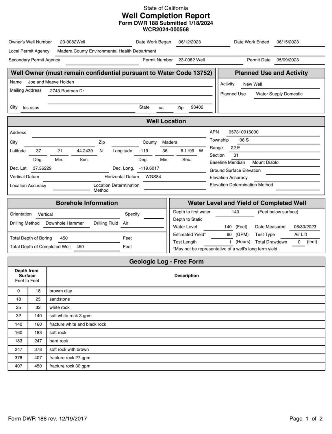
NEW HI-FLOW WELL! This 0.98 acre parcel is going to be the perfect place for your new build. At just above 3200 ft elevation, escape the heat from the valley and build your dream home here in the mountains. A lot of work has already gone into this property with all corners being marked, and, most impressive, a brand new well has already been drilled! Surrounded by beautiful pine and oak trees, leave your worries down in the valley and join us up in the mountains. The light through the trees is sure to impress, as well as the serenity and peace you will experience up here. Reach out to your favorite Realtor for a showing and more information.
Property Type
Land
Property Subtype 1
Single Family Residence
Region
Mountain
Potential Use
Residential
Price Per Acre
$81,633
Days On London
41
Cumulative Days On London
41
County
Madera
Documents Available
CC&Rs
Improvements
None
REO / Bank Owned
No
Cross Street Address
Ponderosa Way
Directions
Hwy 41 North, Right on Road 222, Left on Dorstan, stay to the right up to Ponderosa Way, then stay to the right at the fork to Oak Lane. Left on Oak Lane-property is 2nd lot on your left.
Gas & Electric
No Electricity, None
Sewer / Water
Private Well
Land / Lot Description
Less than 1 Acre, Rolling
Accessibility
County Road, Paved Road
Site Amenities
Cul De Sac
APN
057 310 016 000
Zoning
RMS
School District
Yosemite
School Type 1
High School
School Name 1
Yosemite
School Type 2
Junior High School
School Name 2
Oak Creek
School Type 3
Grade School
School Name 3
Oakhurst
Sale Options
Total Parcel Only
Seller Will Consider
Cash

Courtesy of Justin Barigian, Realty Concepts - Oakhurst - [email protected]
Last modified 1 month ago
Fresno MLS last checked for updates 38 minutes ago

The data relating to real estate for sale on this web site comes in part from the Internet Data eXchange (IDX) of the Multiple Listing Service. Real estate listings are marked with the IDX logo and detailed information about them includes the name of the listing broker and the name of the listing agent. The information being provided is for consumers' personal, non-commercial use and may not be used for any purpose other than to identify prospective properties consumer may be interested in purchasing. Information herein deemed reliable but not guaranteed, representations are approximate, individual verification recommended.

Copyright © 2026  London Properties, Ltd. All rights reserved.