FBpixel

Get More Info

Print A Flyer

Get A Home Loan

Share

398 Atlantica Dr S

Madera, CA 93636

Copy Link Get Directions

$525,000

4 bd
  |  
2.5 ba
  |  
2,395 sq ft
  |  
0.07 acre

398 Atlantica Dr S

Madera, CA 93636

Get Directions
Listed On: 04/09/2026
Status: Active
Listing Number: 646755 (Fresno MLS)

Schedule a Tour

Contact Info


Presented By:

London Properties, Ltd.
London Properties, Ltd. 559.661.6100 Email Agent
Property Description
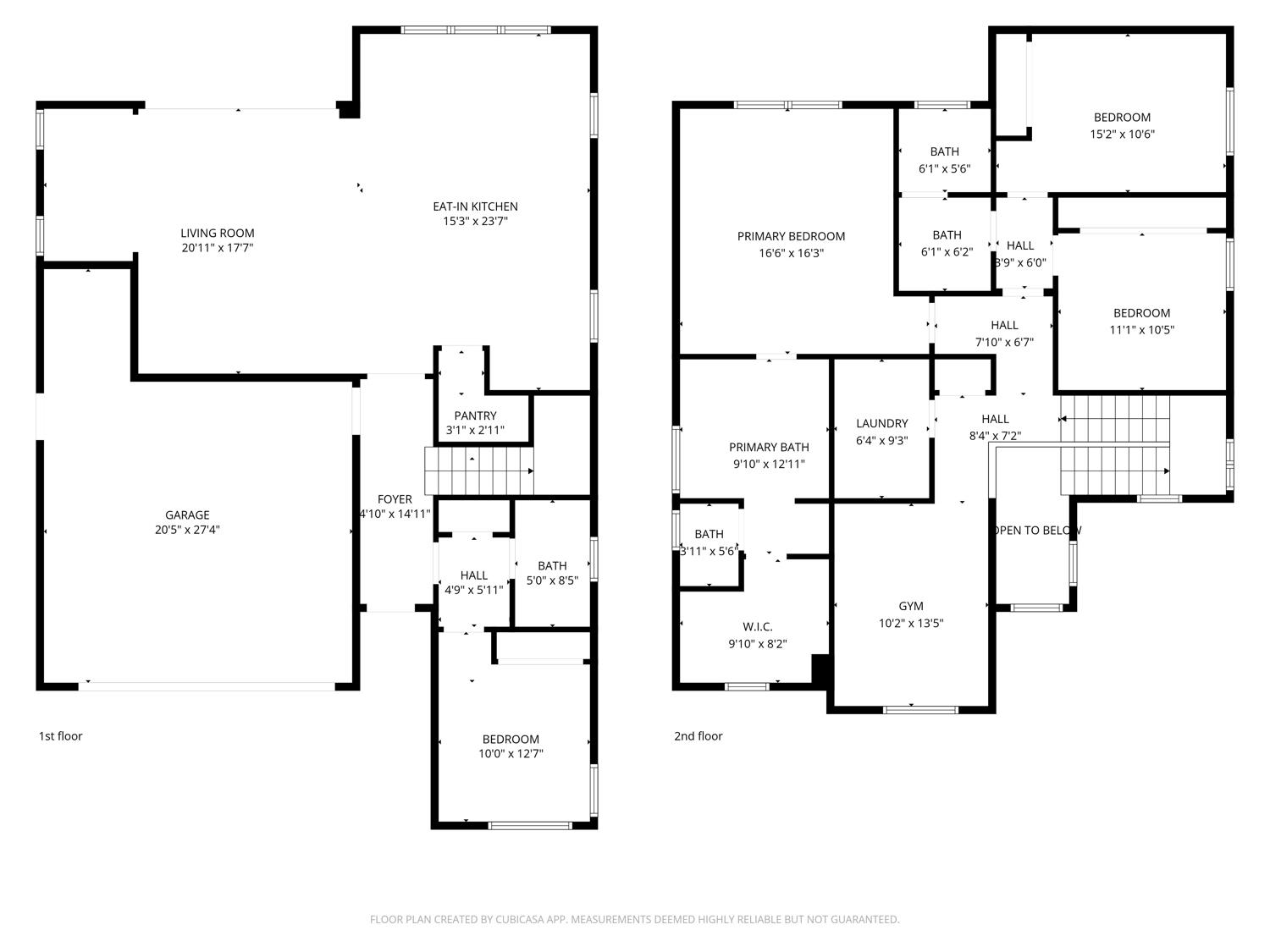
Experience refined living in this stunning two-story home, ideally located in the prestigious Riverstone community. As you step inside, you're immediately welcomed by soaring vaulted ceilings and an abundance of natural light, creating a bright and airy ambiance throughout. Just off the foyer, you'll find a conveniently located bedroom and bathroom-ideal for guests or multigenerational living. Continue into the open-concept main living area, where the kitchen, breakfast nook, and living room seamlessly come together-creating the perfect space for both everyday living and effortless entertaining. The kitchen showcases rich wood cabinetry, abundant storage, a spacious pantry, stainless-steel smart Wi-fi appliances, and a large granite island-perfect for gatherings, meal prep, and hosting. Luxury vinyl plank flooring flows throughout the main living areas, complemented by plush carpeting in the living room, first-floor bedroom, and all upstairs bedrooms for added comfort. Head upstairs to find a versatile flex room right off the landing-perfect for a home gym, office, theater, playroom, or even a fifth bedroom. Continuing through the second level, the spacious primary suite offers dual vanities, a walk-in shower, a relaxing soaking tub, and a generous sized walk-in closet. Two additional bedrooms and a full bathroom are thoughtfully positioned toward the rear of the home, providing both comfort and privacy. Step outside to the backyard, complete with a covered patio, a spacious concrete pad, and a steel pergola-offering the perfect setting to create your own outdoor retreat. Additional upgrades include Tesla solar+Powerwall 3, custom window tint throughout, an air purification system, and an advanced salt-free water filtration system with protective cover. Living in Riverstone means enjoying world-class amenities at The Lodge clubhouse, including a resort-style pool, kids' pool, hot tub, fitness center, meeting spaces, kitchen, grassy amphitheater, and fire pits. The community also features multiple parks, a dog park, and access to an award-winning school. Conveniently, Riverwalk Shopping Center is located just across the street, offering easy access to shopping and dining. This home truly has it all-don't miss your opportunity to make it yours. Schedule your private showing today!
Property Type
Residential
Property Subtype 1
Single Family Residence
Year Built
2022
Region
Urban
# of Stories
Two
Price Per Square Foot
$219
Price Per Acre
$7,500,000
Days On London
21
Cumulative Days On London
21
County
Madera
REO / Bank Owned
No
Cross Street Address
Market/Cathedral
Directions
North on Hwy 41. W on Ave. 12. S on Riverwalk Blvd. W on Market Ave. continuing through 3 roundabouts. N on Cathedral Ct. W on Ponderosa Way. On your left: 398 Atlantica Dr. S.
Heating & Cooling
Central Heat & Cool
Laundry
Inside
Roofing
Composition
Foundation
Concrete
Primary Bedroom Level
Upper
Exterior
Stucco
Pool
No
Pool
No
Gas & Electric
Public Utilities
Sewer / Water
Public Water, Public Sewer
Solar
Yes
Solar Type
Lease
Are there garage spaces?
Yes
Garage Type
Attached
Garage Spaces
2
APN
080 250 029 000
Association / Park Amenities
Pool, Spa, Club House, Exercise Room, Green Area, Playground
HOA Dues
125.00
School District
Golden Valley
School Type 1
High School
School Name 1
Liberty
School Type 2
Junior High School
School Name 2
Ranchos
School Type 3
Grade School
School Name 3
Stone Creek

Similar Properties

$539,599

  • 4
  • 2.5
  • 2,166
  • 0.16

923 Peters Rd S

Madera, CA 93636

$535,000

  • 4
  • 3
  • 2,430
  • 0.13

1266 Talus Way S

Madera, CA 93636

$529,900

  • 4
  • 3
  • 2,419
  • 0.13

503 Cathedral Ct S

Madera, CA 93636

$499,999

  • 5
  • 3.5
  • 2,534
  • 0.12

1757 Klamath Rd S

Madera, CA 93636

Courtesy of Kelly Quesada, Western Pioneer Properties - [email protected]
Last modified 2 weeks ago
Fresno MLS last checked for updates 45 minutes ago

The data relating to real estate for sale on this web site comes in part from the Internet Data eXchange (IDX) of the Multiple Listing Service. Real estate listings are marked with the IDX logo and detailed information about them includes the name of the listing broker and the name of the listing agent. The information being provided is for consumers' personal, non-commercial use and may not be used for any purpose other than to identify prospective properties consumer may be interested in purchasing. Information herein deemed reliable but not guaranteed, representations are approximate, individual verification recommended.

Copyright © 2026  London Properties, Ltd. All rights reserved.