FBpixel

Get More Info

Print A Flyer

Get A Home Loan

Share

30088 Tioga Dr

Coarsegold, CA 93614

Copy Link Get Directions

$399,000

4 bd
  |  
2 ba
  |  
1,850 sq ft
  |  
1.66 acres

30088 Tioga Dr

Coarsegold, CA 93614

Get Directions
Listed On: 04/09/2026
Status: Active
Listing Number: 646791 (Fresno MLS)

Schedule a Tour

Contact Info


Presented By:

London Properties, Ltd.
London Properties, Ltd. 559.683.3400 Email Agent
Property Description
Mountain Retreat with Pool, Privacy & Scenic Views Near Yosemite in Coarsegold

Enjoy the feel of a true mountain escape in Yosemite Lakes Park with this move-in ready custom home on 1.66 private acres, complete with a pool, spa, and scenic views. Located under an hour from Yosemite National Park and just 40 minutes to Fresno, this property offers the perfect balance of seclusion and convenience.

From the moment you step inside, you'll notice the vaulted tongue-and-groove ceilings, stunning redwood beams, and abundant natural light that create a warm, inviting space with true custom character. The open-concept living area centers around a cozy wood-burning stove, perfect for relaxing or entertaining.

The updated kitchen features:

Butcher block countertops
Brick backsplash
Copper accents throughout
Spacious walk-in pantry

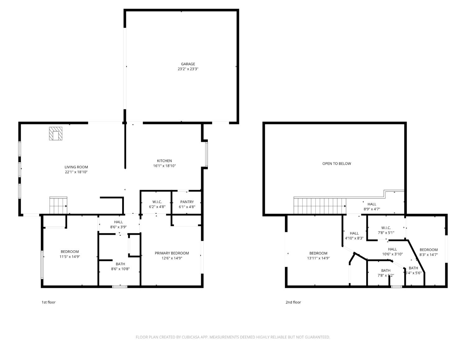
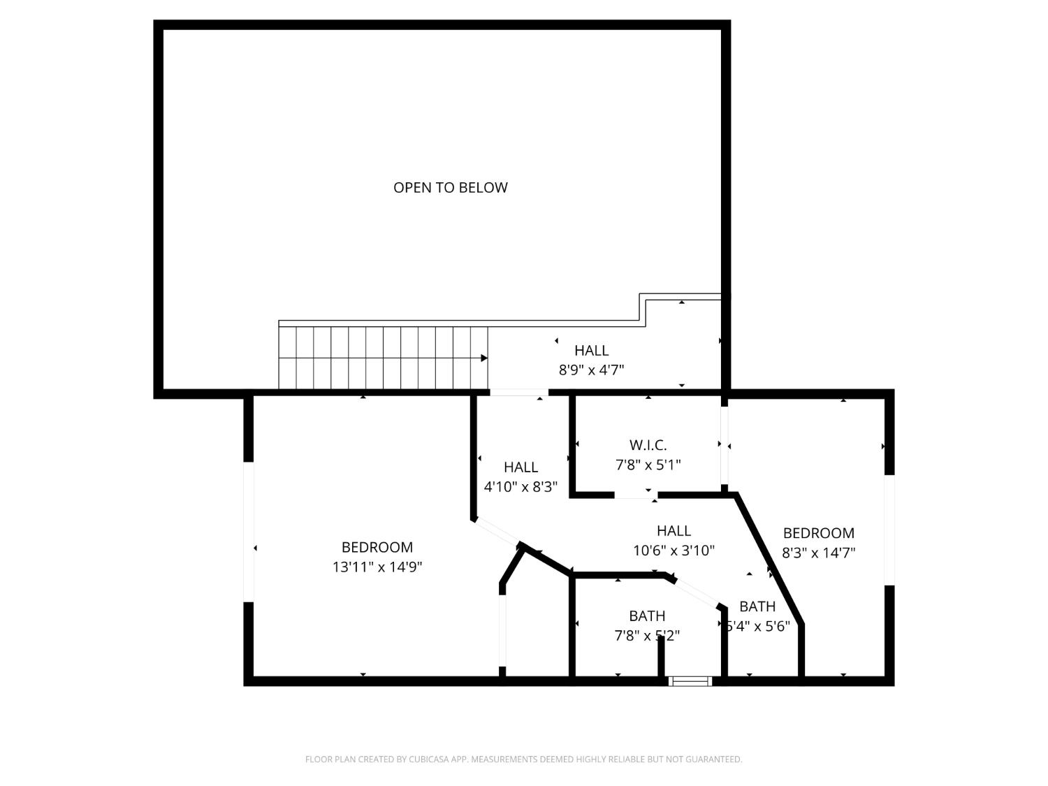
With 4 bedrooms and 2 bathrooms, this home offers a flexible layout ideal for families, remote work, or guests. Two bedrooms and a full bath are conveniently located downstairs (one currently used as a gym), while upstairs you'll find two additional bedrooms--each with a private balcony and incredible views, plus a beautifully updated bathroom with a custom stone shower.

Outdoor living is where this home truly shines:

Private in-ground pool and spa
Gently rolling 1.66-acre lot
Peaceful setting with added privacy from neighbors

Recent upgrades to the home include:

Newer electrical panel with generator hookup
Rinnai tankless water heater
Newer garage door

The oversized attached garage provides ample space for tools, toys, or workshop needs, plus additional laundry hookups.

Whether you're looking for a full-time residence, mountain retreat, or investment opportunity near Yosemite, this home offers a rare combination of custom design, modern updates, and lifestyle appeal.

Schedule your private showing today -- homes like this in Yosemite Lakes Park don't come around often.
Property Type
Residential
Property Subtype 1
Single Family Residence
Year Built
1991
Region
Foothill
# of Stories
Two
Price Per Square Foot
$216
Price Per Acre
$240,361
Days On London
20
Cumulative Days On London
20
County
Madera
Special Features
Built In Cabinets, Skylight
REO / Bank Owned
No
Cross Street Address
N Dome
Directions
Hwy 41 North To Yosemite Springs Parkway, Right on Revis Rd, Right on Ranger Circle Rd, Right on N Dome Rd, Right on Tioga Dr, home on right.
Style
Ranch
Heating & Cooling
Ductless or Split
Laundry
Inside, In Garage, On Lower Level
Roofing
Composition
Foundation
Concrete
Kitchen
F/S Range/Oven, Gas Appliances, Disposal, Dishwasher, Pantry
Primary Bedroom Level
Main
Bath Features
Tub/Shower
Basement
None
Flooring
Carpet
# of Fireplaces
1
Fireplace Type
Free Standing
Exterior
Wood
Pool
Yes
Pool
Yes
Pool Type
In Ground
Spa
Yes
Spa Type
In Ground
Patio Features
Covered, Wood Deck
Yard
Fruit/Nut Trees
Gas & Electric
Public Utilities, Propane
Sewer / Water
Septic Tank, Community Well
Energy Efficiency
Tankless Water Heater
Solar
No
Parking Features
Potential RV Parking
Are there garage spaces?
Yes
Garage Type
Attached
Garage Spaces
2
APN
093 510 033 000
Association / Park Amenities
Pool, Spa, Club House, Tennis, Security Guard, Lake/Pond, Other/None
HOA Dues
178.00
School District
Yosemite
School Type 1
High School
School Name 1
Yosemite
School Type 2
Junior High School
School Name 2
Coarsegold
School Type 3
Grade School
School Name 3
Rivergold
Seller Will Consider
Government, Conventional, Cash

Courtesy of Justin Barigian, Realty Concepts - Oakhurst - [email protected]
Last modified 3 days ago
Fresno MLS last checked for updates 50 minutes ago

The data relating to real estate for sale on this web site comes in part from the Internet Data eXchange (IDX) of the Multiple Listing Service. Real estate listings are marked with the IDX logo and detailed information about them includes the name of the listing broker and the name of the listing agent. The information being provided is for consumers' personal, non-commercial use and may not be used for any purpose other than to identify prospective properties consumer may be interested in purchasing. Information herein deemed reliable but not guaranteed, representations are approximate, individual verification recommended.

Copyright © 2026  London Properties, Ltd. All rights reserved.