FBpixel

Get More Info

Print A Flyer

Get A Home Loan

Share

2644 Morrill Rd

Riverbank, CA 95367

Copy Link Get Directions

$1,600,000

2.40 acres

2644 Morrill Rd

Riverbank, CA 95367

Get Directions
Listed On: 12/03/2025
Status: Active
Listing Number: 225147428 (Metrolist MLS)

Schedule a Tour

Contact Info


Presented By:

London Properties, Ltd.
London Properties, Ltd. 559.436.4071 Email Agent
Property Description
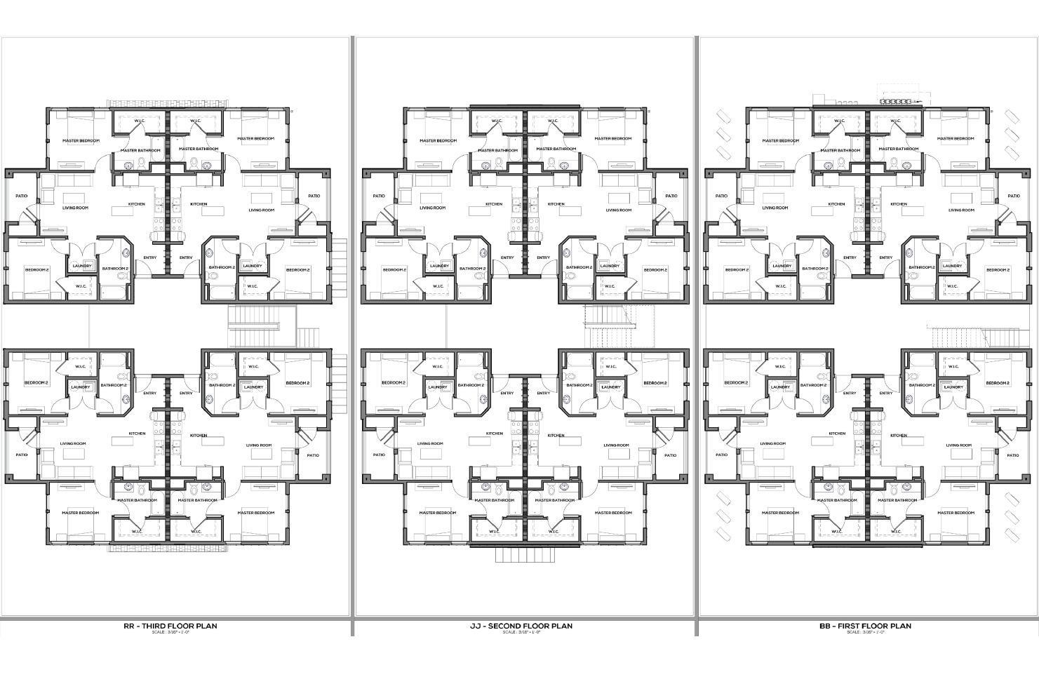
Located in the heart of Riverbank, 2644 Morrill Rd (the Property'') presents a rare infill development opportunity consisting of approximately 2.4 acres of residentially zoned land. The Property is fully entitled for a 48-unit residential community, with project approvals issued and receipt of approvals in hand, along with plans available. This unique opportunity allows a developer or investor to acquire an approved multifamily project with entitlement risk removed and accelerate execution in Riverbank's desirable, supply-constrained market. Entitlement documents and plan set available upon request. Buyer to verify all information to their satisfaction.
Property Type
Land
Property Subtype 1
Residential Acreage
Current Use
See Remarks
Possible Use
See Remarks
Development Status
Site Plan Approved, See Remarks
Directions to Property
Take Hwy 108 East, turn right on Jackson Ave, and continue about 0.5 mile. Turn left onto Morrill Rd and the property is immediately on the right-hand side.
Cross Street
Howard Avenue
County
Stanislaus
Special Listing Conditions
None
Additional Living Unit
No
Utilities
See Remarks
Irrigation
Public, See Remarks
Water Source
See Remarks
Sewer
Public Sewer, Unknown, See Remarks
Lot Features
See Remarks
APN
075 030 001
Topography
Cleared, Mostly Level
Road Frontage Type
City Street
Vegetation
See Remarks
Horse Property
No
Zoning
R3
Zoning Description
Residential, See Remarks
Crops
None
List AOR
MetroList Services, Inc.
Association
No
School District (County)
Stanislaus
Elementary School District
Riverbank Unified
Middle or Junior School District
Riverbank Unified
Senior High School District
Riverbank Unified
Distance To Electric
Electricity To Site
Income Includes
None

Courtesy of Gurminder Singh, Crossroads RE Central Valley, Inc
IDX provided by Reliance Marketing

Metrolist
Terms of Use

The data relating to real estate for sale on this web site comes in part from the Internet Data eXchange (IDX) of the Multiple Listing Service. Real estate listings are marked with the IDX logo and detailed information about them includes the name of the listing broker and the name of the listing agent. The information being provided is for consumers' personal, non-commercial use and may not be used for any purpose other than to identify prospective properties consumer may be interested in purchasing. Information herein deemed reliable but not guaranteed, representations are approximate, individual verification recommended.

Copyright © 2026  London Properties, Ltd. All rights reserved.