FBpixel

Get More Info

Print A Flyer

Get A Home Loan

Share

4783 W Manning Ave

Fresno, CA 93706

Copy Link Get Directions

$8,646,750

345.87 acres

4783 W Manning Ave

Fresno, CA 93706

Get Directions
Listed On: 12/26/2025
Status: Active
Listing Number: 225153515 (Metrolist MLS)

Schedule a Tour

Contact Info


Presented By:

London Properties, Ltd.
London Properties, Ltd. 559.436.4071 Email Agent
Property Description
345.87-Acre Independence Almond Orchard Caruthers, CA Total Acreage: 345.87 acres of producing almonds. Planting Year: 2015 (Prime bearing age). Variety: 100% Independence - a premier, self-fertile variety known for consistent high yields and superior harvest quality. Key Improvements: 3 Residential Houses (ideal for owner, manager, and/or labor housing). 3 Shops Raisin City Water District. (5) Wells (1) 40 HP Pump & Well (3) 60 HP Pumps & Wells (1) 200 HP Pump & Well 3 Shop/Storage Buildings (for equipment, maintenance, and supplies). Operational Status: Fully improved, operational turn-key farm. Location: Prime agricultural area of Caruthers with established infrastructure.
Property Type
Land
Property Subtype 1
Agriculture
Primary Residence
Under 1500 SqFt, Bedrooms 3+, Other
Current Use
Agricultural
Possible Use
Agricultural
Development Status
Farm Land
Directions to Property
From CA-41 to S/Yosimite Fwy, Turn right on Manning Ave, Destination on left.
Cross Street
S Cornelia Ave
County
Fresno
Special Listing Conditions
Offer As Is, Other
Other Structures
Residence, Shop, Other
Additional Living Unit
Yes
Additional Living Desc
Under 1500 SqFt, Other
Utilities
Water Available, Other
Irrigation
Well
Water Source
Agricultural Well
Sewer
Other
Lot Features
Sprinkler Irrigation, Other
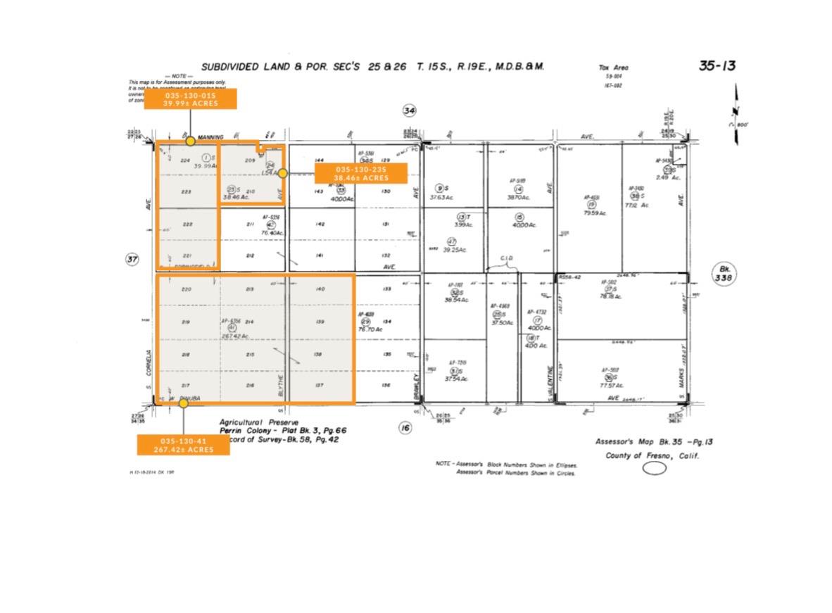
APN
035 130 01 [PARCEL MAP]
Topography
Agricultural Leveled
Road Frontage Type
City Street
Vegetation
Crop(s)
Horse Property
No
Zoning
AG
Zoning Description
Agricultural
Crops
Almond
List AOR
MetroList Services, Inc.
Association
No
School District (County)
Other
Elementary School District
Other
Middle or Junior School District
Other
Senior High School District
Other
Income Includes
Crop(s), Land

Courtesy of Kamal Bir Singh, HomeSmart PV and Associates
IDX provided by Reliance Marketing

Metrolist
Terms of Use

The data relating to real estate for sale on this web site comes in part from the Internet Data eXchange (IDX) of the Multiple Listing Service. Real estate listings are marked with the IDX logo and detailed information about them includes the name of the listing broker and the name of the listing agent. The information being provided is for consumers' personal, non-commercial use and may not be used for any purpose other than to identify prospective properties consumer may be interested in purchasing. Information herein deemed reliable but not guaranteed, representations are approximate, individual verification recommended.

Copyright © 2026  London Properties, Ltd. All rights reserved.