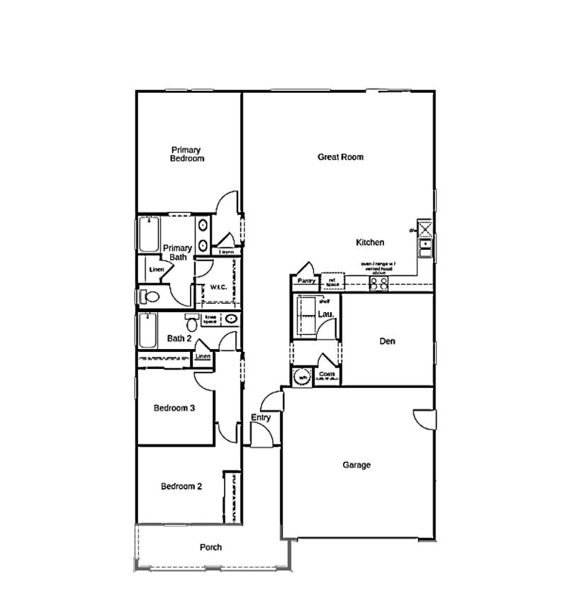
This charming French cottage-style home is currently Under Construction. Inside, enjoy 9-ft. ceilings and a thoughtfully designed open layout with a spacious great room ideal for everyday living and entertaining. The kitchen offers a central island for added prep space and casual dining, a pantry closet, and a Whirlpool® appliance package. A versatile den provides flexibility for a home office or additional living space, while a dedicated laundry room enhances everyday convenience. Energy-efficient features include Low-E windows, a smart thermostat, an electric water heater, and WaterSense® labeled fixtures for added comfort and savings. While construction is underway, you'll have the opportunity to personalize select design elements, including cabinetry, countertops, flooring, and more with the guidance of our professional interior design team. Located in the desirable Acacia II at Patterson Ranch, this inviting single-story community is near local parks and within walking distance of the elementary school. Commuters will appreciate convenient access to I-5 and Hwy. 99, with an easy drive to Tracy and Turlock.
Property Type
Residential
Property Subtype 1
Single Family Residence
Subtype Description
Detached
Year Built Details
Under Construction
Year Built Source
Builder
Remodeled/Updated
No
Stories
1
Home Warranty
No
Directions to Property
From I-5, exit Sperry Ave./Hwy. 130 heading east. Turn left on 2nd St., right on Walnut Ave. and left on Sycamore Ave. Turn left on Somerset Way and left on Cheshire Dr. Follow KB flags to sales office.
Cross Street
Schali Lane
County
Stanislaus
Special Listing Conditions
None
Main Level
Bedroom(s), Dining Room, Family Room, Primary Bedroom, Full Bath(s), Garage, Kitchen, Street Entrance
Construction Materials
Stucco, Wood
Foundation
Concrete, Slab
Roof
Tile
Heating
Central
Cooling
Central
Laundry Features
Inside Room
Full Bathrooms
2
Bath Features
Tub w/Shower Over
Flooring
See Remarks
Kitchen Features
Pantry Closet, Island
Dining Room Features
Dining/Family Combo
Living Room Features
Great Room
Primary Bathroom Features
Shower Stall(s)
Patio And Porch Features
Front Porch
Pool
No
Spa
No
ADU/2nd Unit
No
Utilities
Public
Electric
220 Volts
Irrigation
Public District
Water Source
Public
Sewer
Public Sewer
Parking Features
Attached
Garage Spaces
2.00
Lot Features
Other
APN
047 077 051
Horse Property
No
Zoning Description
Residential
List AOR
MetroList Services, Inc.
Association
No
Senior Community
No
School District (County)
Stanislaus
Elementary School District
Patterson Joint
Middle or Junior School District
Patterson Joint
Senior High School District
Patterson Joint
71109
A: SELECT * FROM `lpdotcom`.`props-main` WHERE CAST(`props-main`.`ListingPrice` AS DECIMAL) >= 449340.5 AND CAST(`props-main`.`ListingPrice` AS DECIMAL) <= 496639.5 AND CAST(`props-main`.`Bedrooms` AS DECIMAL) >= '3' AND CAST(`props-main`.`Bathrooms` AS DECIMAL(10,5)) >= '2' AND CAST(`props-main`.`SquareFootage` AS DECIMAL) >= 1641 AND CAST(`props-main`.`SquareFootage` AS DECIMAL) <= 2141 AND ((`props-main`.`PropertyType` = 'Residential' AND (
`props-main`.`PropertySubtype1` = '1 House on Lot' OR `props-main`.`PropertySubtype2` = '1 House on Lot' OR `props-main`.`PropertySubtype3` = '1 House on Lot' OR
`props-main`.`PropertySubtype1` = 'Cabin' OR `props-main`.`PropertySubtype2` = 'Cabin' OR `props-main`.`PropertySubtype3` = 'Cabin' OR
`props-main`.`PropertySubtype1` = 'House on Lot' OR `props-main`.`PropertySubtype2` = 'House on Lot' OR `props-main`.`PropertySubtype3` = 'House on Lot' OR
`props-main`.`PropertySubtype1` = 'Own Your Own' OR `props-main`.`PropertySubtype2` = 'Own Your Own' OR `props-main`.`PropertySubtype3` = 'Own Your Own' OR
`props-main`.`PropertySubtype1` = 'Rural Residence' OR `props-main`.`PropertySubtype2` = 'Rural Residence' OR `props-main`.`PropertySubtype3` = 'Rural Residence' OR
`props-main`.`PropertySubtype1` = 'Rural/Residence' OR `props-main`.`PropertySubtype2` = 'Rural/Residence' OR `props-main`.`PropertySubtype3` = 'Rural/Residence' OR
`props-main`.`PropertySubtype1` LIKE '%fam%' OR `props-main`.`PropertySubtype2` LIKE '%fam%' OR `props-main`.`PropertySubtype3` LIKE '%fam%'))) AND ((`props-main`.`id` = 1689927 OR `props-main`.`id` = 1714209 OR `props-main`.`id` = 1714784 OR `props-main`.`id` = 1699122 OR `props-main`.`id` = 1709777 OR `props-main`.`id` = 1716615 OR `props-main`.`id` = 1716701 OR `props-main`.`id` = 1649515 OR `props-main`.`id` = 1721374 OR `props-main`.`id` = 1716547 OR `props-main`.`id` = 1721540 OR `props-main`.`id` = 1715615 OR `props-main`.`id` = 1723862 OR `props-main`.`id` = 1718842 OR `props-main`.`id` = 1722234 OR `props-main`.`id` = 1701580 OR `props-main`.`id` = 1714544 OR `props-main`.`id` = 1707875 OR `props-main`.`id` = 1723015 OR `props-main`.`id` = 1705572 OR `props-main`.`id` = 1723016 OR `props-main`.`id` = 1716593)) AND CONCAT(`MLSFeed`,`MLNumber`) != 'metrolist226012557' AND `props-main`.`PictureCount` > 0 AND (`props-main`.`ExpiredDate` >= '2026-04-26' OR `props-main`.`ExpiredDate` IS NULL OR TRIM(`props-main`.`ExpiredDate`) = '') AND `props-main`.`Status` != 'Unapproved' AND (`props-main`.`DupeOf` IS NULL OR TRIM(`props-main`.`DupeOf`) = '') AND `props-main`.`Delayed` = 0 GROUP BY `props-main`.`id` ORDER BY RAND();
1
Similar Properties
$469,900
4
2
1,725
0.12
526 Bedfordshire Dr
Patterson, CA 95363
Courtesy of Lisa Celestino, KB HOME Sales-Northern California Inc IDX provided by Reliance Marketing
The data relating to real estate for sale on this web site comes in part from the Internet Data eXchange (IDX) of the Multiple Listing Service. Real estate listings are marked with the IDX logo and detailed information about them includes the name of the listing broker and the name of the listing agent. The information being provided is for consumers' personal, non-commercial use and may not be used for any purpose other than to identify prospective properties consumer may be interested in purchasing. Information herein deemed reliable but not guaranteed, representations are approximate, individual verification recommended.