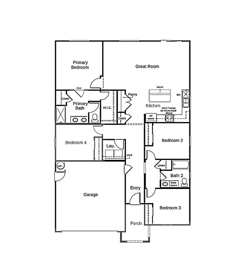
This European cottage-inspired single-story home is under construction that showcases 9-ft. ceilings and a thoughtfully designed open layout created with you in mind. The kitchen features cider-stained cabinets, luxury vinyl plank flooring, quartz countertops and a central island that provides extra prep space and dining space and a Whirlpool® appliance package. A dedicated laundry room adds everyday convenience. You'll also appreciate the energy-efficient features, including WaterSense® labeled fixtures, low-E windows, a smart thermostat, and an electric water heater. Located in the new Summerfield at Tivoli community, this home places you near Highways 99 and 120 for easy commuting, with shopping, dining, parks, waterways, and outdoor recreation all within close reach for year-round enjoyment.
Property Type
Residential
Property Subtype 1
Single Family Residence
Subtype Description
Detached
Year Built Details
Under Construction
Year Built Source
Builder
Remodeled/Updated
No
Stories
1
Home Warranty
No
Directions to Property
From Hwy. 99 South, exit Hwy. 219/Kiernan Ave. heading east. Turn right on Oakdale Rd., left on Sylvan Rd., left on Aria Way and right on Pintail Drake Ln. to sales office on the left.
Cross Street
Fox Sparrow Ave.
County
Stanislaus
Special Listing Conditions
None
Main Level
Bedroom(s), Dining Room, Family Room, Primary Bedroom, Full Bath(s), Garage, Kitchen, Street Entrance
Construction Materials
Stucco, Wood
Foundation
Concrete, Slab
Roof
Tile
Heating
Central
Cooling
Central
Laundry Features
Inside Room
Full Bathrooms
2
Bath Features
Tub w/Shower Over
Flooring
Carpet, Vinyl
Kitchen Features
Pantry Closet, Quartz Counter, Island
Dining Room Features
Dining/Family Combo
Living Room Features
Great Room
Primary Bathroom Features
Shower Stall(s)
Pool
No
Spa
No
ADU/2nd Unit
No
Utilities
Public
Electric
220 Volts
Irrigation
Public District
Water Source
Public
Sewer
Public Sewer
Parking Features
Attached
Garage Spaces
2.00
Lot Features
Other
APN
083 010 046
Horse Property
No
Zoning Description
Residential
List AOR
MetroList Services, Inc.
Association
No
Senior Community
No
School District (County)
Stanislaus
Elementary School District
Modesto City
Middle or Junior School District
Modesto City
Senior High School District
Modesto City
71109
A: SELECT * FROM `lpdotcom`.`props-main` WHERE CAST(`props-main`.`ListingPrice` AS DECIMAL) >= 544340.5 AND CAST(`props-main`.`ListingPrice` AS DECIMAL) <= 601639.5 AND CAST(`props-main`.`Bedrooms` AS DECIMAL) >= '4' AND CAST(`props-main`.`Bathrooms` AS DECIMAL(10,5)) >= '2' AND CAST(`props-main`.`SquareFootage` AS DECIMAL) >= 1468 AND CAST(`props-main`.`SquareFootage` AS DECIMAL) <= 1968 AND ((`props-main`.`PropertyType` = 'Residential' AND (
`props-main`.`PropertySubtype1` = '1 House on Lot' OR `props-main`.`PropertySubtype2` = '1 House on Lot' OR `props-main`.`PropertySubtype3` = '1 House on Lot' OR
`props-main`.`PropertySubtype1` = 'Cabin' OR `props-main`.`PropertySubtype2` = 'Cabin' OR `props-main`.`PropertySubtype3` = 'Cabin' OR
`props-main`.`PropertySubtype1` = 'House on Lot' OR `props-main`.`PropertySubtype2` = 'House on Lot' OR `props-main`.`PropertySubtype3` = 'House on Lot' OR
`props-main`.`PropertySubtype1` = 'Own Your Own' OR `props-main`.`PropertySubtype2` = 'Own Your Own' OR `props-main`.`PropertySubtype3` = 'Own Your Own' OR
`props-main`.`PropertySubtype1` = 'Rural Residence' OR `props-main`.`PropertySubtype2` = 'Rural Residence' OR `props-main`.`PropertySubtype3` = 'Rural Residence' OR
`props-main`.`PropertySubtype1` = 'Rural/Residence' OR `props-main`.`PropertySubtype2` = 'Rural/Residence' OR `props-main`.`PropertySubtype3` = 'Rural/Residence' OR
`props-main`.`PropertySubtype1` LIKE '%fam%' OR `props-main`.`PropertySubtype2` LIKE '%fam%' OR `props-main`.`PropertySubtype3` LIKE '%fam%'))) AND ((`props-main`.`id` = 1725510 OR `props-main`.`id` = 1727300 OR `props-main`.`id` = 1723779 OR `props-main`.`id` = 1725575 OR `props-main`.`id` = 1712373 OR `props-main`.`id` = 1718726 OR `props-main`.`id` = 1717143 OR `props-main`.`id` = 1726442 OR `props-main`.`id` = 1725762 OR `props-main`.`id` = 1718161 OR `props-main`.`id` = 1724762 OR `props-main`.`id` = 1724594 OR `props-main`.`id` = 1725346 OR `props-main`.`id` = 1720809 OR `props-main`.`id` = 1724948 OR `props-main`.`id` = 1726826 OR `props-main`.`id` = 1716075 OR `props-main`.`id` = 1727176 OR `props-main`.`id` = 1725877 OR `props-main`.`id` = 1714546 OR `props-main`.`id` = 1723691 OR `props-main`.`id` = 1715732 OR `props-main`.`id` = 1718143 OR `props-main`.`id` = 1725328 OR `props-main`.`id` = 1725327 OR `props-main`.`id` = 1725326 OR `props-main`.`id` = 1722553 OR `props-main`.`id` = 1725329 OR `props-main`.`id` = 1722505 OR `props-main`.`id` = 1723784 OR `props-main`.`id` = 1720509 OR `props-main`.`id` = 1726301 OR `props-main`.`id` = 1715680 OR `props-main`.`id` = 1727079 OR `props-main`.`id` = 1721379 OR `props-main`.`id` = 1727204 OR `props-main`.`id` = 1723462 OR `props-main`.`id` = 1726966 OR `props-main`.`id` = 1723170 OR `props-main`.`id` = 1718395 OR `props-main`.`id` = 1723444 OR `props-main`.`id` = 1727241 OR `props-main`.`id` = 1726869 OR `props-main`.`id` = 1726642 OR `props-main`.`id` = 1708028 OR `props-main`.`id` = 1725995 OR `props-main`.`id` = 1725024 OR `props-main`.`id` = 1715659 OR `props-main`.`id` = 1716990 OR `props-main`.`id` = 1727338 OR `props-main`.`id` = 1720853 OR `props-main`.`id` = 1721984 OR `props-main`.`id` = 1721978 OR `props-main`.`id` = 1713189 OR `props-main`.`id` = 1725189 OR `props-main`.`id` = 1707869 OR `props-main`.`id` = 1723461 OR `props-main`.`id` = 1707870 OR `props-main`.`id` = 1722859 OR `props-main`.`id` = 1716441 OR `props-main`.`id` = 1724573 OR `props-main`.`id` = 1724659 OR `props-main`.`id` = 1666517 OR `props-main`.`id` = 1726447 OR `props-main`.`id` = 1717001 OR `props-main`.`id` = 1718598 OR `props-main`.`id` = 1713962 OR `props-main`.`id` = 1722861 OR `props-main`.`id` = 1726461 OR `props-main`.`id` = 1726481 OR `props-main`.`id` = 1721328 OR `props-main`.`id` = 1721459 OR `props-main`.`id` = 1725186 OR `props-main`.`id` = 1727226 OR `props-main`.`id` = 1726191 OR `props-main`.`id` = 1723887 OR `props-main`.`id` = 1726444 OR `props-main`.`id` = 1710082 OR `props-main`.`id` = 1727071 OR `props-main`.`id` = 1726931 OR `props-main`.`id` = 1716072 OR `props-main`.`id` = 1714415 OR `props-main`.`id` = 1722647 OR `props-main`.`id` = 1726849 OR `props-main`.`id` = 1724591 OR `props-main`.`id` = 1727322 OR `props-main`.`id` = 1719732 OR `props-main`.`id` = 1722510 OR `props-main`.`id` = 1705737 OR `props-main`.`id` = 1721478)) AND CONCAT(`MLSFeed`,`MLNumber`) != 'metrolist226015979' AND `props-main`.`PictureCount` > 0 AND (`props-main`.`ExpiredDate` >= '2026-05-16' OR `props-main`.`ExpiredDate` IS NULL OR TRIM(`props-main`.`ExpiredDate`) = '') AND `props-main`.`Status` != 'Unapproved' AND (`props-main`.`DupeOf` IS NULL OR TRIM(`props-main`.`DupeOf`) = '') AND `props-main`.`Delayed` = 0 GROUP BY `props-main`.`id` ORDER BY RAND();
2
Similar Properties
$599,000
4
3
1,944
0.16
1220 Sonoma Ave
Modesto, CA 95355
$563,990
4
3
1,950
0.14
2604 Umbria Ct
Modesto, CA 95357
Courtesy of Lisa Celestino, KB HOME Sales-Northern California Inc IDX provided by Reliance Marketing
The data relating to real estate for sale on this web site comes in part from the Internet Data eXchange (IDX) of the Multiple Listing Service. Real estate listings are marked with the IDX logo and detailed information about them includes the name of the listing broker and the name of the listing agent. The information being provided is for consumers' personal, non-commercial use and may not be used for any purpose other than to identify prospective properties consumer may be interested in purchasing. Information herein deemed reliable but not guaranteed, representations are approximate, individual verification recommended.