Provide a name for your search and specify whether or not you'd prefer to receive email updates.
Get Daily Email Updates
Save Search
Please log in or create an account.
Save Property
Provide a name for your property and specify whether or not you'd prefer to receive email updates.
Get Daily Email Updates
Save Property
Please log in or create an account.
The ULTIMATE Guide To Buying Your Home!
Get Your FREE Copy Share a few contact details and we will send you the guide to your inbox.
THANK YOU!
Check your inbox for the Buyer's Guide.
Get More Info
Please provide the following information and one of our customer service representatives will assist you.
* indicates required fields.
Sending...
Sent!
Get More Info
Print A Flyer
Get A Home Loan
Share
https://www.londonproperties.com/property/link/metrolist/226039896/10464-E-Herndon-Ave/Clovis/https://www.londonproperties.com/images/props/metrolist/full/226039896.jpgLondon Properties Clovis Real Estate | 10464 E Herndon Ave
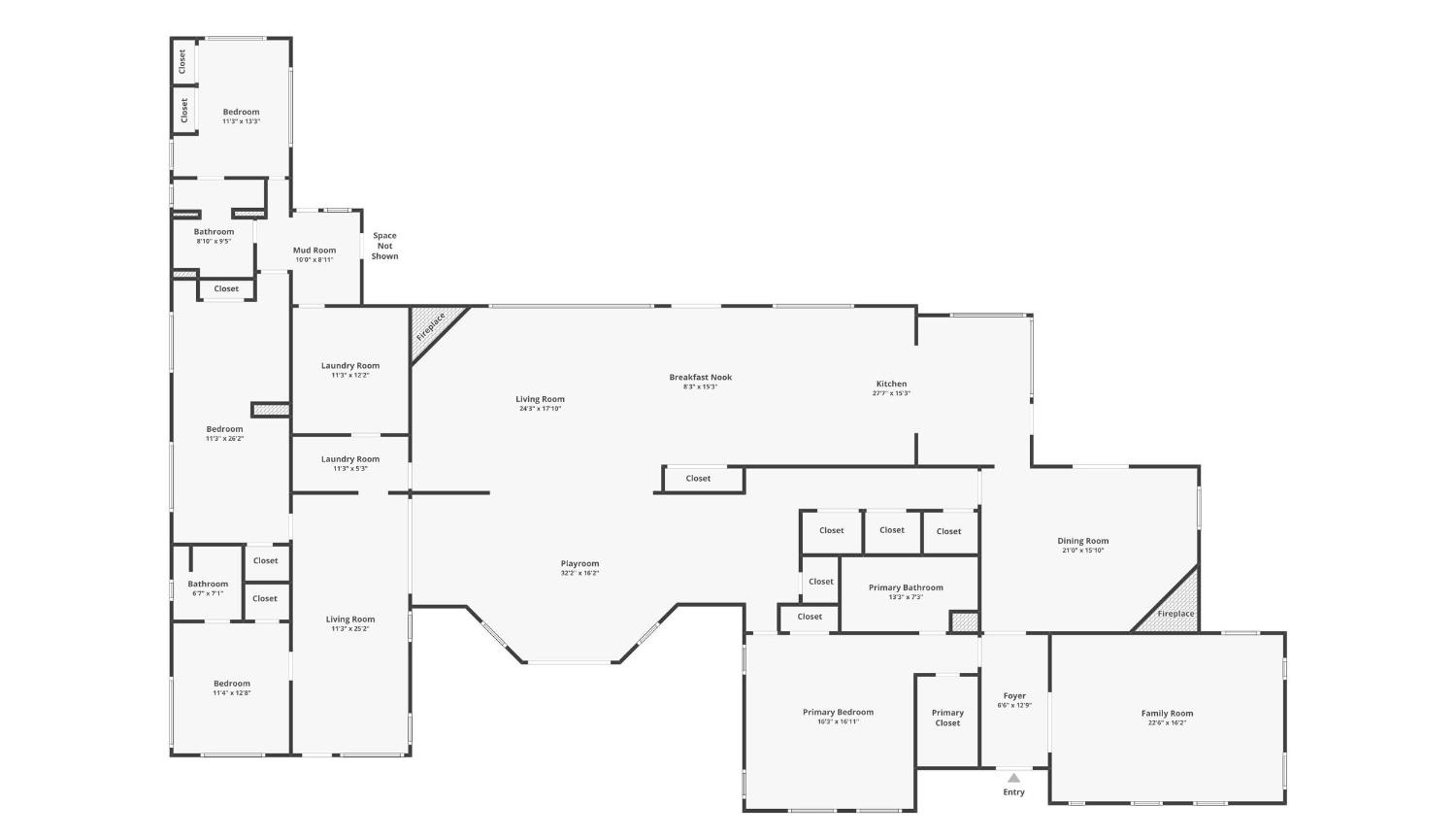
Built in 1919 by New York financier Harry Balfe, the Balfe Ranch house is a landmark of Spanish-style architecture and Central Valley history. Balfe, a confidant of Presidents Roosevelt and Taft, invested over one million dollars to create a grand estate and thoroughbred racing facilities. Renowned for breeding some of America's finest horses, the ranch drew celebrities such as Will Rogers, Gary Cooper, and Fred MacMurray, becoming Central California's only government-certified private airfield. Balfe also curated a private museum filled with Western relics and Native artifacts, underscoring his passion for preserving culture and history.Today it is home to the Indart Ranch with 100s of acres of permanently planted agricultural product. Situated in the award winning Clovis Unified School District. Clovis Community Hospital just 3 miles away! The estate is positioned within the city's development plan. Whether envisioned as a private retreat or the foundation for a new residential or mixed-use community, this property stands at the crossroads of luxury and legacy.
Property Type
Residential
Property Subtype 1
Single Family Residence
Subtype Description
Detached
Property Condition
Updated/Remodeled
Year Built
1919
Year Built Source
Other
Remodeled/Updated
Yes
Remodeled/Updated Desc
Kitchen 0-5YR
Stories
1
Home Warranty
No
Directions to Property
Use GPS
Cross Street
Althoff
County
Fresno
Special Listing Conditions
None
Main Level
Bedroom(s), Living Room, Dining Room, Family Room, Primary Bedroom, Full Bath(s), Kitchen
Architectural Style
Spanish
Construction Materials
Wood, See Remarks
Foundation
Concrete, Raised, Slab
Roof
Other
Heating
Central, Fireplace(s), Wood Stove
Cooling
Ceiling Fan(s), Central
Laundry Features
Other
Other Structures
Barn(s), Pergola, Storage, Other
Interior Features
Wet Bar
Full Bathrooms
3
Bath Features
Other
# of Fireplaces
3
Fireplace Features
Living Room, Family Room, Stone, Wood Burning, Wood Stove
Flooring
Carpet, Tile, Vinyl, Wood
Appliances
Gas Cook Top, Hood Over Range, Dishwasher, Double Oven
Kitchen Features
Breakfast Area, Pantry Cabinet, Island, Tile Counter
Dining Room Features
Breakfast Nook, Formal Room, Formal Area
Living Room Features
Other
Exterior Features
Uncovered Courtyard, Wet Bar
Patio And Porch Features
Front Porch
Pool
Yes
Pool Features
Built-In, Pool Sweep, Fenced
Spa
No
ADU/2nd Unit
No
Utilities
Propane Tank Owned, Electric, Internet Available
Electric
Other
Irrigation
Agricultural Well, See Remarks
Water Source
Well
Sewer
Septic System, Other
Parking Features
Uncovered Parking Spaces 2+
Garage Spaces
4.00
Lot Features
Landscape Back, Landscape Front, See Remarks, Other
A: SELECT * FROM `lpdotcom`.`props-main` WHERE CAST(`props-main`.`ListingPrice` AS DECIMAL) >= 18525000 AND CAST(`props-main`.`ListingPrice` AS DECIMAL) <= 20475000 AND CAST(`props-main`.`Bedrooms` AS DECIMAL) >= '4' AND CAST(`props-main`.`Bathrooms` AS DECIMAL(10,5)) >= '3' AND CAST(`props-main`.`SquareFootage` AS DECIMAL) >= 4550 AND CAST(`props-main`.`SquareFootage` AS DECIMAL) <= 5050 AND ((`props-main`.`PropertyType` = 'Residential' AND (
`props-main`.`PropertySubtype1` = '1 House on Lot' OR `props-main`.`PropertySubtype2` = '1 House on Lot' OR `props-main`.`PropertySubtype3` = '1 House on Lot' OR
`props-main`.`PropertySubtype1` = 'Cabin' OR `props-main`.`PropertySubtype2` = 'Cabin' OR `props-main`.`PropertySubtype3` = 'Cabin' OR
`props-main`.`PropertySubtype1` = 'House on Lot' OR `props-main`.`PropertySubtype2` = 'House on Lot' OR `props-main`.`PropertySubtype3` = 'House on Lot' OR
`props-main`.`PropertySubtype1` = 'Own Your Own' OR `props-main`.`PropertySubtype2` = 'Own Your Own' OR `props-main`.`PropertySubtype3` = 'Own Your Own' OR
`props-main`.`PropertySubtype1` = 'Rural Residence' OR `props-main`.`PropertySubtype2` = 'Rural Residence' OR `props-main`.`PropertySubtype3` = 'Rural Residence' OR
`props-main`.`PropertySubtype1` = 'Rural/Residence' OR `props-main`.`PropertySubtype2` = 'Rural/Residence' OR `props-main`.`PropertySubtype3` = 'Rural/Residence' OR
`props-main`.`PropertySubtype1` LIKE '%fam%' OR `props-main`.`PropertySubtype2` LIKE '%fam%' OR `props-main`.`PropertySubtype3` LIKE '%fam%'))) AND ((`props-main`.`id` = 1705997 OR `props-main`.`id` = 1725434 OR `props-main`.`id` = 1724858 OR `props-main`.`id` = 1725909 OR `props-main`.`id` = 1722761 OR `props-main`.`id` = 1495106 OR `props-main`.`id` = 1495592 OR `props-main`.`id` = 1726080 OR `props-main`.`id` = 1659285 OR `props-main`.`id` = 1696541 OR `props-main`.`id` = 1719303 OR `props-main`.`id` = 1719304)) AND CONCAT(`MLSFeed`,`MLNumber`) != 'metrolist226039896' AND `props-main`.`PictureCount` > 0 AND (`props-main`.`ExpiredDate` >= '2026-05-12' OR `props-main`.`ExpiredDate` IS NULL OR TRIM(`props-main`.`ExpiredDate`) = '') AND `props-main`.`Status` != 'Unapproved' AND (`props-main`.`DupeOf` IS NULL OR TRIM(`props-main`.`DupeOf`) = '') AND `props-main`.`Delayed` = 0 GROUP BY `props-main`.`id` ORDER BY RAND();
0
Courtesy of Zachary Girard, Valley Sotheby's International Realty IDX provided by Reliance Marketing
The data relating to real estate for sale on this web site comes in part from the Internet Data eXchange (IDX) of the Multiple Listing Service. Real estate listings are marked with the IDX logo and detailed information about them includes the name of the listing broker and the name of the listing agent. The information being provided is for consumers' personal, non-commercial use and may not be used for any purpose other than to identify prospective properties consumer may be interested in purchasing. Information herein deemed reliable but not guaranteed, representations are approximate, individual verification recommended.