FBpixel

Get More Info

Print A Flyer

Get A Home Loan

Share

0 Ave 168

Tulare, CA 93274

Copy Link Get Directions

$185,000

1.06 acres

0 Ave 168

Tulare, CA 93274

Get Directions
Listed On: 05/30/2025
Status: Active
Listing Number: 235558 (Tulare MLS)

Schedule a Tour

Contact Info


Presented By:

London Properties, Ltd.
London Properties, Ltd. 559.589.6600 Email Agent
Property Description
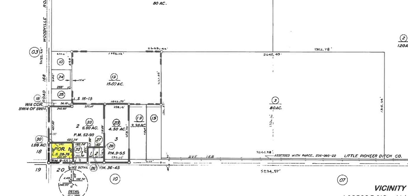
Don't miss this 1.06-acre corner parcel located at the highly visible northeast corner of Avenue 168 & Road 168. Zoned C-2-MU (General Commercial with Mixed-Use overlay), this property offers incredible potential for retail, service businesses, mixed-use development, or investment hold. With excellent road frontage on both avenues and proximity to residential neighborhoods, this lot is ideally positioned for future growth. Whether you're a developer, investor, or business owner looking to build in a growing Central Valley community, this is a strategic location to bring your vision to life.
Property Type
Land
Property Sub-Type
Commercial
Days On London
355
Cumulative Days On London
355
County
Tulare
Current Use
Vacant
Directions to Property
From Paige Ave take the Turner Dr exit and head south towards Ave 192. Keep taking Ave 192 east till you get to Road 168. Take road 168 south till you get to Avenue 168. The lot sits on the NE Corner on Ave 168 and Road 168 in Woodville.
Utilities
Other
Water Source
Public
Sewer
Other
APN
233 060 030 000
Lot Dimensions
Approx. 183 x 2406 x 196
Zoning Description
C-2-MU
Additional Parcels Y/N
No
Road Surface Type
Asphalt
HOA
No

Courtesy of Adam Kagy, Craig Smith & Associates, Inc.

The data relating to real estate for sale on this web site comes in part from the Internet Data eXchange (IDX) of the Multiple Listing Service. Real estate listings are marked with the IDX logo and detailed information about them includes the name of the listing broker and the name of the listing agent. The information being provided is for consumers' personal, non-commercial use and may not be used for any purpose other than to identify prospective properties consumer may be interested in purchasing. Information herein deemed reliable but not guaranteed, representations are approximate, individual verification recommended.

Copyright © 2026  London Properties, Ltd. All rights reserved.